- HOME
- 施工事例一覧
- LDKリフォーム事例一覧
- 加賀市 M様邸 LDKリフォーム事例
加賀市 M様邸 LDKリフォーム事例
安らいで暮らす



リフォーム前 |
リフォーム後 |
リフォーム前のお施主様の悩み・ご要望
- 居間が暗い
- 子供に目が届くようにしたい
- 台所が狭い
- 暖かくしたい
- 収納がもっとほしい
- カクカクの廊下をすっきりしたい
- 冬場の物干しスペースを確保したい
- おしゃれな空間にしたい
- オール電化にしたい
- 使えるものは使ってほしい

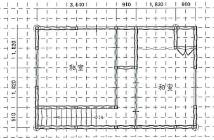
外観
リフォーム前![]() |
リフォーム後![]() 玄関横の坪庭。季節ごとに色々な表情を見せてくれます。 |
玄関
リフォーム前![]() |
リフォーム後![]() 既存の建具を再利用し、玄関のアクセントとしました。建具には地消地産の和紙をはめ込んであります。 |
リビング
リフォーム前![]() |
リフォーム後![]() 大きな窓からは光が差し込み、明るいリビングになりました。造り付のテレビ台にはデザインガラスを組み込んであります。 |
ダイニングキッチン
リフォーム前 |
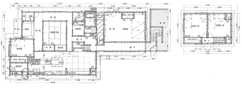
リフォーム後![]() 間取りを変え、広いLDKの空間にすることで、家族6人が揃って食事できるようになりました。キッチン横にダイニングテーブルをもってきたことで配膳も楽になりました。またキッチンに立っていてもリビングの様子がよくわかり、コミュニケーションもとれます。 |
トイレ
リフォーム前![]() |
リフォーム後![]() 手洗いカウンターには無垢の天板を使いました。全体的にベージュ、茶系でまとめた空間に手洗いボウルの深い青色がポイントとなり、落ち着きを表現しています。 |
解決方法・工夫点
- 南側からの光も入るようにして明るいリビングになりました。西側には大きな窓を設けない対策をしました。
- お子様に目が届くように、LDKを通って2階に上がるようにしました。
- LDKを広い空間にすることで、家族6人が揃って食事ができるようになり、また配膳も楽になりました。
- 断熱材を床、壁、天井にしっかり入れ、保温力が上がりました。
- 台所横に勝手口兼食品庫を作り、収納力がアップしました。
- 間取りを変えたことで動線が良くなり、廊下もスッキリしました。LDKやお母様寝室、ご夫婦寝室からでも水まわりが使いやすくなりました。
- 天井裏スペースを活用して、物干しスペースを確保しました。
- キタデザインチームで設計を考え、女性・主婦目線で使い勝手はもちろんデザインもご提案しました。
- オール電化にしてランニングコストを抑えることができました。
- 玄関収納を組み替えて再利用したり、和室の明かり窓をリメイクしたりし、想い出を残すリフォームとしました。コスト面だけでなく、見栄えや使い勝手も良くなりました。
お施主様の感想
生活スタイルの変化
家族揃って食事ができるようになり、LDKで過ごす時間が長くなりました。
リモデルしてスマイルになったこと
おしゃれになっただけでなく、使い勝手もよくなり喜んでいます。



























