小松市 N様邸 連続受賞事例
工場から住宅へ 夫婦の新しい暮らし
TOTOリモデルスタイル作品コンテスト2009 優秀賞



リフォーム前![]() |
リフォーム後![]() |
リフォーム前のお施主様の悩み・ご要望
- 定年を迎え、夫婦がこれから生活していく場所として、中古の工場を手に入れました。そこをリフォームして自然を感じながら有意義な生活をおくりたい。

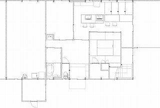
畳コーナーより LDK 和室を見る
リフォーム前![]() ![]() |
リフォーム後![]() 3枚引き戸を閉めた状態。 ![]() 3枚引き戸を開けると、開放的な空間となり、広々お使いいただけます。 |
リビング・ダイニング・キッチン
リフォーム後![]() お孫さんが遊びに来てもみんなでテーブルを囲めます |
キッチン
リフォーム後![]() 奥様はお料理しながらみんなと会話が楽しめます。 |
収納
リフォーム後![]() 壁厚利用棚。収納できてスッキリ。 ![]() 畳下はしっかり収納。ダイニング側と、キッチン側としっかりたっぷり収納です。 |
外観
リフォーム前![]() |
リフォーム後![]() 住宅部分の外壁をガルバリウム鋼板で新しくしました。生活範囲の住宅部分だけ、外壁を新しく張り替えました。 |
解決方法・工夫点
- まず、夫婦お二人が快適に暮らすために必要な広さを考え、リフォームの必要性とこれからの生活(ライフスタイル)を検討しました。リフォーム費用が新築費用と同じぐらいになっては、おすすめできませんので、ご予算をお聞きしてご要望に沿ったリフォームをご提案。
- 畳コーナーは、ダイニングのいすとして、収納として活用できる優れもの!
- 息子さん家族が遊びに来たときにみんなでテーブルを囲んで集える空間としました。鉄骨造の利点を活かし、すっきりと広い空間をとりました。
- 動線を考えて、キッチン横のに壁厚を利用した収納を設けました。
- 小型テレビがすっぽり入り、キッチンからテレビがみられるように設計しました。
- 既存の階段はそのまま残し、外部から出入りする階段室を設けました。
- リフォームが必要な場所と、そのまま残す箇所を明確にし、快適に暮らすためのご提案をしました。
お施主様の感想
生活スタイルの変化
- 自然を感じた暮らしがしたいと、この工場を購入。リフォームでその願いが叶いました。
- 定年を迎え、夫婦二人の暮らしは、鳥のさえずりを聞き、散歩から始まり、畑で野菜作りを楽しめます。
- できた野菜が食卓に並ぶ、自然を感じられる生活が叶いました。
リモデルしてスマイルになったこと
- 住宅部分としてリフォームした以外の場所は、現在、夫婦でリフォームに挑戦。まず、住宅右側の車庫内部は、夫婦で内部壁を塗装しました。
- 現在、2階に部屋をつくろうと、喜多ハウジングの施工を参考に二人でリフォームしています。自分たちで作る楽しみを味わっています。






























