- HOME
- 施工事例一覧
- 富山県の施工事例一覧
- 高岡市 U様 リフォーム
高岡市 U様 リフォーム
暮らしに活かす色の効果~フォトジェニックな赤いキッチン~


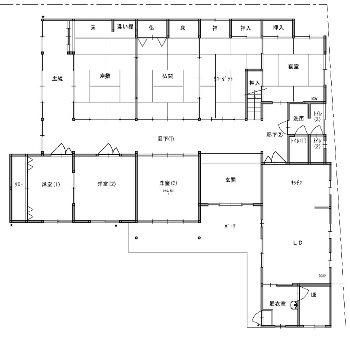
リフォーム前![]() |
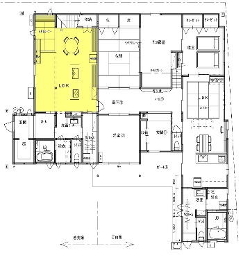
リフォーム後![]() |
リフォーム前のお施主様の悩み・ご要望
和の雰囲気を一新して明るい空間にしたい。シンプルよりはカラフルで楽しく暮らせるようにしたい。
共働きなので家事のしやすい間取りにしたい。

LDK
リフォーム前![]() |
リフォーム後![]() キッチンは一日の始まりに「元気」「活力」の出る赤を使用。 色が目立つように回りは白・グレーを基調としました。 ![]() リビングの様子が見えるキッチンスタイル。 キッチンの回りをぐるぐる回れるので 家事もしやすいです。 ![]() 洗面へと続く三角の入り口も空間のアクセントになります。 |
寝室
リフォーム前![]() |
リフォーム後![]() ![]() 色が持つ心理的作用をインテリアに取り入れました。 寝室・子供室には「鎮静」「ストレス緩和」の効果のある 青を使用しました。 |
お施主様の感想
リモデルしてスマイルになったこと
憧れだった赤いキッチン。眺めるだけでも幸せな気分を感じています。
家事もしやすいですし、背面や横にも収納があるので、使う時も片付けるときも楽にできるようになりました。
キッチンの後ろのポイント壁も空間にとてもあっていてカフェみたいになりました。
富山を含め北陸三県で活動している喜多ハウジング㈱には、43年間リフォーム専門で積み重ねられた富山の皆様からの信頼と実績があります。
私たちがリフォームのお手伝いをすることで、単に快適になったとか便利になったとかにとどまらず、
「ずっとこの場所に居たい」
そんな豊かな気持ちに、富山の皆様がなっていただけるよう、お客様に寄り添う最良のリフォームをお届けします。
富山の皆様向けの
富山 リフォームTOPページ はこちらです。



































