- HOME
- 施工事例一覧
- 富山県の施工事例一覧
- 富山県氷見市K様 部分リフォーム
富山県氷見市K様 部分リフォーム
大人数が集まっても快適に過ごせる空間に


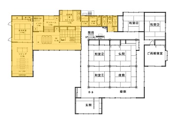
リフォーム前![]() ![]() |
リフォーム後![]() ![]() |
リフォーム前のお施主様の悩み・ご要望
- 多様な家族構成かつ、親戚や友達など来客も多いので(一度に30~40人程)、温泉旅館のように大人数が集まっても心地よく快適に過ごせるような空間にしたい
- 廊下に出ないといけない家事動線が、冬は寒く不便に感じるので、スムーズに家事のできる動線にしたい。
- 日当たりの良いところに廊下があり、台所や居間は暗いので明るい空間にしたい。

リビング・多目的室
リフォーム前![]() ![]() |
リフォーム後![]() 庭を眺められる広々としたリビング
和の心地よさを感じる多目的室 ![]() オープンにすると大人数で集まることができる |
ダイニングキッチン
リフォーム前![]() ![]() |
リフォーム後![]() アイランドキッチンで回遊性のある動線に ![]() 庭を眺められるダイニング |
水廻り
リフォーム前![]() |
リフォーム後
混み合わないトイレ ![]() 混み合わない洗面台 ![]() 大人数で同時に使える脱衣スペース |
解決方法・工夫点
- 大人数集まる時はオープンにすると一体的に広く使うことのできる計画とした。
- ランドリールームの畳コーナーや既存の床柱、足触りの良いフロアなど、和の心地よさを感じられるポイントをつくり、旅館の雰囲気を演出した。
- 家事動線では回遊性のあるアイランドキッチンを採用し、サンルームやランドリールームなどをダイニングキッチンの後ろに配置することで行き止まりのないスムーズな動線計画とした。
- 庭をDKやリビングからも眺められるように、また採光を確保するために高さと幅の大きなサッシを採用した。
お施主様の感想
生活スタイルの変化
大人数集まっても混みあわず、皆がそれぞれの場所でくつろぎ、快適に過ごせるようになりました。
そして、回遊性のある動線で、水回りの家事がとても楽になりました。
リモデルしてスマイルになったこと
庭を囲むように大きな窓を設けたことで、常に部屋の中が明るく、庭を眺めながら料理をすることができるので、料理をするのが楽しみになりました。
エリア断熱のおかげでエアコンの効きが良くなり、冬場の心配もなくなりました。
富山を含め北陸三県で活動している喜多ハウジング㈱には、43年間リフォーム専門で積み重ねられた富山の皆様からの信頼と実績があります。
私たちがリフォームのお手伝いをすることで、単に快適になったとか便利になったとかにとどまらず、
「ずっとこの場所に居たい」 そんな豊かな気持ちに、富山の皆様がなっていただけるよう、お客様に寄り添う最良のリフォームをお届けします。
富山の皆様向けの 富山 リフォームTOPページ はこちらです。





















































