- HOME
- 施工事例一覧
- トイレ(住宅)事例一覧
- 小松市 U邸 減築・部分リフォーム
小松市 U邸 減築・部分リフォーム
ニューヨークから里山へ~自然を身近に感じて暮らし楽しむ~


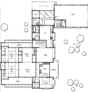
リフォーム前![]() |
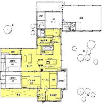
リフォーム後![]() |
リフォーム前のお施主様の悩み・ご要望
- 空き家になったご実家を奥様が相続された。
- 子供家族も遊びに来た時に、広々と使えてコミュニケーションが取れるようにしたい。
- 庭をLDKのどこからでも眺められるようにしたい。
- 段差が高い。トイレや居間等、どこへ行くにも段差があり危ない。
- トイレへの動線が通路幅も狭く、将来車いすになった際に心配。
- 寒いので、暖かく快適に過ごせるようにしたい。
- 家事動線をスムーズにしたい。

外観
リフォーム前![]() |
リフォーム後![]() |
LDK
リフォーム前![]() ![]() |
リフォーム後![]() 2方向から庭が眺められる心地よいリビング ![]() 天井付のフードとし、大開口の窓から庭を眺めらえるように
コミュニケーションが取れるLDK |
▲ページトップへ戻る
▲ページトップへ戻る
▲ページトップへ戻る
玄関・廊下
リフォーム前![]() ![]() |
リフォーム後![]() 車いすでもトイレの行き来が楽な通路幅を確保 ![]() 出書院の障子戸を移設し、趣を感じるおもてなしホール ![]() 玄関正面は既存の雰囲気を残した |
▲ページトップへ戻る
トイレ・手洗い
リフォーム前 |
リフォーム後![]() アームレストの設置と2枚引戸でバリアフリー仕様 ![]() カウンター下がオープンなので車いすでも利用できる |
階段前
リフォーム前![]() |
リフォーム後![]() 温まった熱が上に上がらないように片引き戸を設置 ![]() 壁に近い色の扉で階段の存在感をなくした |
車庫からの動線
リフォーム前![]() |
リフォーム後![]() ご家族は車庫から出入りしLDKに入れる動線とした ![]() 独立した洗面コーナーでLDKに入る前に手洗いができる |
解決方法・工夫点
- コミュニケーションが取りやすいよう和室と居間をつなげて広々LDKにした
- リビングから2方向に庭が眺められる計画とし、キッチンフードも天井付けにしたことで大開口の窓からも庭が眺めやすくなった。
- 既存の階段前に建具を設置し、温まった熱が上に上がらないよう計画した。
- ご家族は車庫から荷物を置いて手洗いをしてからLDKに入ることができる動線。
お施主様の感想
リモデルしてスマイルになったこと
両親が大事にしてきた家の趣を活かしたところと、普段過ごすLDKが自然を感じられる心地よい空間となりました。危なかった玄関ホールが、安心して行き来できるようになり、お客様をおもてなしできるホールになりました。古民家の家の趣をさらに活かした玄関ホールになり、主人も家を気に入ってくれて嬉しいです。




























































