- HOME
- 施工事例一覧
- 平屋リフォーム事例一覧
- 福井市つくし野 モデルハウス ハウスリボーン事例
福井市つくし野 モデルハウス ハウスリボーン事例
快適で安心安全な住まいになりました。


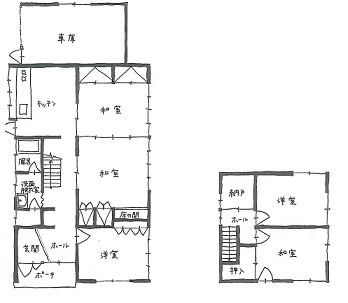
リフォーム前![]() |
リフォーム後![]() |
リフォーム前のお施主様の悩み・ご要望
●今後2人になることを考えると、大きい家は必要ない
●結婚した子供が泊まれるスペースが必要
●寒くて、廊下を通って水廻りや寝室にいきたくない

ホール・LDK
リフォーム前 |
リフォーム後![]() 平屋なので段差なくLDK、水廻りや寝室を行き来できます ![]() 廊下がないのでバリアフリーとヒートショックを防ぐことができます。 |
水回り
リフォーム前 |
リフォーム後![]() 寝室から近く、バリアフリーなトイレ。 ![]() しっかりと断熱材が入っているのでとても暖かいお風呂。 |
解決方法・工夫点
●リビング横に畳スペースを設け、泊まれる部屋を確保しました●魔法瓶のように、家全体を断熱材でくるんで、寒さ解消しました
生活スタイルの変化
2階を減築し、1階だけでマンションのような快適な暮らしに
リモデルしてスマイルになったこと
平屋になったことで、断熱性、耐震性、利便性がUPし、
快適で安心安全な住まいになりました。
































