- HOME
- 施工事例一覧
- 部分リフォーム事例一覧
- 能美市 T様 部分リフォーム
能美市 T様 部分リフォーム
要望が180°変化。インスペクションからのリフォーム


リフォーム前![]() |
リフォーム後![]() |
リフォーム前のお施主様の悩み・ご要望
・2階の床のたわみが気になる。
・仏間や和室の建具の開閉と隙間からの寒さが気になる。
・縁側が木製サッシのため隙間風が気になる。
・気になっているところに手を入れて安心して暮らしたい。

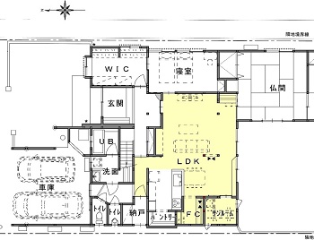
LDK
リフォーム前![]() |
リフォーム後光が差し込むリビング。 縁側を取り込み、中庭を一望できるスペース。 2階の外周直下のところに柱を追加し、 |
解決方法・工夫点
- 2階の柱・壁の直下に柱を追加し補強した。
- 使用頻度の低い仏間とLDKの位置を入れ替え、水廻~LDK~寝室の段差を解消した。
- エリア断熱・床暖房施工等でヒートショックを予防。
- 窓を木製サッシから樹脂Low-Eペアガラスに変更し断熱性能UPさせた。
お施主様の感想
リモデルしてスマイルになったこと
修繕しか考えていなかった私たちに思いもよらぬ設計と提案をしていただき大変満足している。今まで不安に思っていたことが解消した。LDKが普段一番過ごすところ、明るくなって気分も晴れている。管理の大変な庭もこうして普段から眺めることができると手入れの甲斐がある。




























