- HOME
- 施工事例一覧
- 部分リフォーム事例一覧
- 羽咋郡志賀町 K様 部分リフォーム事例
羽咋郡志賀町 K様 部分リフォーム事例


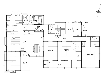
リフォーム前![]() |
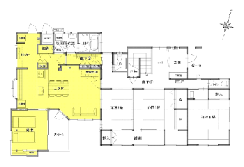
リフォーム後![]() |
リフォーム前のお施主様の悩み・ご要望
-
広いLDKなのに、キッチン部分がせまく感じる。本当は、友人といっしょに料理をしたいときもあるのに一緒にキッチンに立てない。
-
収納も離れた場所にあるので、いちいち取りに行くのが大変。自分たちも使いやすく、友人や来客も寛げる空間にしたい。
-
夫婦の寝室が2階にありそろそろ階段の昇降がきつくなってきた。マンションのように1階でコンパクトに暮らせるようにしたい。
- 寝室を持ってくるとLDKの使い方がどうなるのか不安を抱えている。外壁も一度リフォームをしているので既存の窓を活かしたい。

ダイニング
リフォーム前![]() |
リフォーム後![]() シックな色味の上質な空間。 ![]() ディスプレイスペース。 ![]() 充実の収納スペース。 |
キッチン
リフォーム前![]() |
リフォーム後![]() 家事効率の上がるキッチンスペース |
寝室
リフォーム前![]() |
リフォーム後![]() 寝室を1階に配置して安心な間取りに |
解決方法・工夫点
-
キッチンの配置を部屋の中心に変えて、動線・収納の不便さを解決しました。狭く感じる原因を解消し、寝室を1階に配置しても狭さを感じない空間を実現しました。
-
シックな黒色が好きなお客様。好きな色に囲まれると心が落ち着きます。全体をシックな色合いでコーディネートしました。
お施主様の感想
生活スタイルの変化
以前よりももっとお客様を招くようになりました。収納も増えたので、以前よりも物を置かずにすっきりと暮らすようになりました。また、お嫁さんといっしょにキッチンに立てるようになりました。
寝室が1階に出来たので、1階中心で過ごせるようになりました。
以前よりもお客様を招くときに、あわてずに準備ができるようになりました。
リモデルしてスマイルになったこと
LDK、寝室が近くなったのが、マンションで暮らしているようでとても快適です。1階に寝室があることが思った以上に良かったです。キッチンも配置を変えたことで、料理がとてもしやすくなりました。たくさん収納スペースを作ったので、物がすっきりと片付けられます。まだまだスペースがあいているので収納できそうです。空間に余裕があることで、片付けをする気持ちも前向きになります。そして、大好きな黒色を内装に取り入れてあるのでとてもお気に入りの空間になりました。友人も「落ち着くわ~」「いいね~」と言って寛いでいます。配置を変えることでこんなに快適になるとは思っていませんでした。思い切ってリフォームして良かったです。






























