- HOME
- 施工事例一覧
- 部分リフォーム事例一覧
- 能美市N様 ご夫婦これからリフォーム事例
能美市N様 ご夫婦これからリフォーム事例
悩みを解消することで安心安全を手に入れ、家の良さを実感する


リフォーム前![]() |
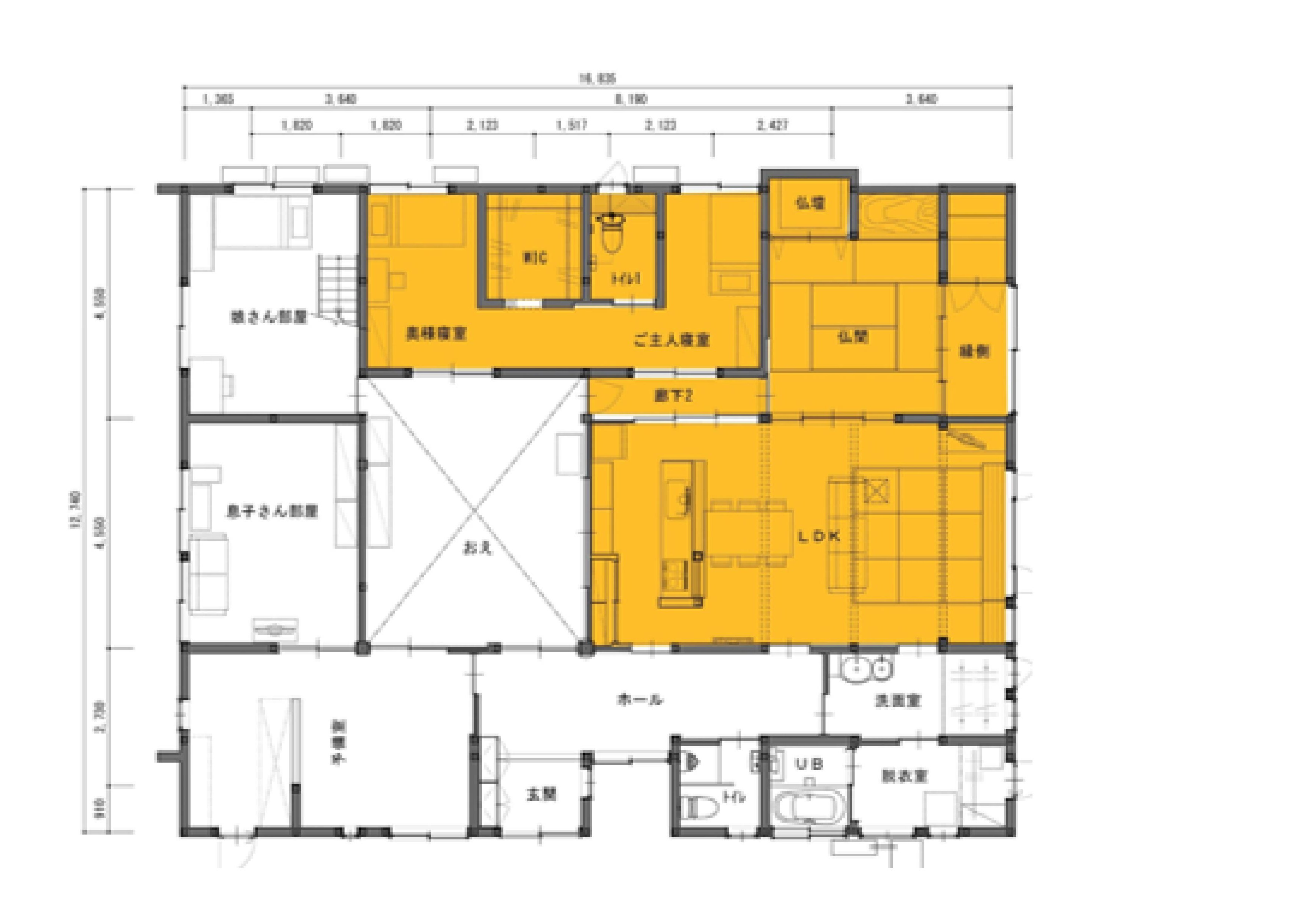
リフォーム後![]() |
リフォーム前のお施主様の悩み・ご要望
- LDKから風呂やトイレが遠く、かつ冬は寒い廊下を通らなくてはならない生活にストレスを感じる
- 寝室からトイレが遠い
- LDKが暗い

リビング
リフォーム前![]() |
リフォーム後東面は庭があり、隣の建物との距離も十分確保できるため、東面 |
ダイニング
リフォーム前 |
リフォーム後ゆったりとしたダイニングスペースを確保しました。 |
仏間
リフォーム前![]() |
リフォーム後LDKに隣接した仏間はお参りもしやすくなりました。 |
トイレ
リフォーム前![]() |
リフォーム後将来的に手摺を取り付けられるように下地を入れた広々トイレ |
解決方法・工夫点
- キッチン以外の水廻りは工事しない方向性としてヒートショック防止に配慮した間取りをご提案しました。
- 既存の水廻りや隣接する蔵の影響で南面からの採光が期待できないため、東面から採光をとりました。
お施主様の感想
生活スタイルの変化
寝室の中にトイレがあるので、寒い冬も苦ではなくなりました。
LDKで過ごす時間が長くなりました。
リモデルしてスマイルになったこと
明るくなったLDKで過ごしながら、これまであまり感じなかったこの家の良さを実感しているところ。
子供達が家族を連れて帰ってきても、皆で過ごせることが嬉しいです。

























