- HOME
- 施工事例一覧
- 部分リフォーム事例一覧
- 加賀市M様 部分リフォーム
加賀市M様 部分リフォーム
制震工法の導入とバリアフリー化で守るこれからの暮らし


リフォーム前![]() |
リフォーム後![]() |
リフォーム前のお施主様の悩み・ご要望
- 一度も直したことのない外壁や屋根の劣化腐朽が気になる。
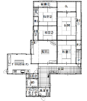
- 毎回土間へ降りてトイレや洗濯室と行き来しなくてはいけないので不便。
- 冬の寒さを軽減したい。
- 家族が安心して集える家にしたい。

外観
リフォーム前![]() ![]() |
リフォーム後![]() 玄関戸や傷んでいた外壁を一新しました ![]() |
▲ページトップへ戻る
寝室・WIC
リフォーム前![]() ![]() |
リフォーム後![]() 元の立派な和室のしつらえを残した寝室 |
▲ページトップへ戻る
水回り
リフォーム前![]() ![]() |
リフォーム後![]() 水回りがまとまり便利な動線になりました ![]() 広々とした明るいトイレで将来も安心です |
解決方法・工夫点
- 独立石基礎の補強、制震ダンパーの施工により耐震性能を高めました。
- 既存の間取りを活かしつつ、便利な動線になるよう計画しました。
- 断熱・バリアフリー性能向上を意識し、安心安全で快適な住まいを計画しました。
お施主様の感想
リモデルしてスマイルになったこと
リフォーム前よりも寒さが軽減され、冬場の生活も快適になった。水回りへ行く際に土間へ降りることがなくなり、移動が楽になった。孫が来ても安心して見守りができるようになった。
















































