- HOME
- 施工事例一覧
- 部分リフォーム事例一覧
- 白山市 K様 部分リフォーム
白山市 K様 部分リフォーム
日常と空間芸術 ~階段吹き抜けギャラリー~


リフォーム前![]() |
リフォーム後![]() |
リフォーム前のお施主様の悩み・ご要望
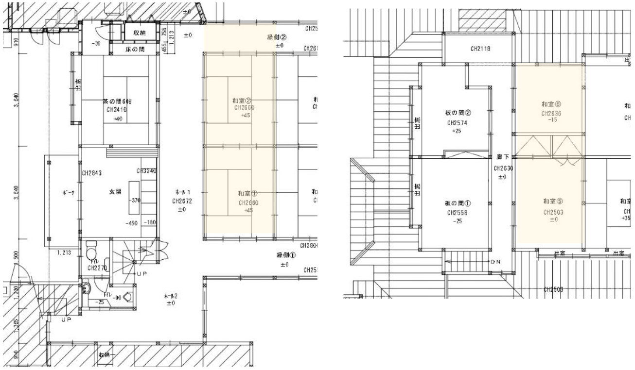
日本画作家の娘様が描かれた絵が飾られることなく、使われていない2階の部屋に置かれている。階段が狭いため、絵の搬入出には苦労している。絵を楽しめる家にしたい。

階段
リフォーム前![]() |
リフォーム後窓は日射遮蔽型ガラスとロールスクリーンを採用。紫外線から絵画を守るのに効果的。 ![]() 上り下りする際にゆっくり絵を鑑賞できるアートスペース。2階にゲストルームがあるため、階段の絵画はお客様を迎える時のウエルカムボード的役割を果たす。 玄関~ホール~階段は、ゆったり通路幅で2階の絵画保管スペースへの搬入出もスムーズになった。 |
トイレ
リフォーム前![]() |
リフォーム後 |
解決方法・工夫点
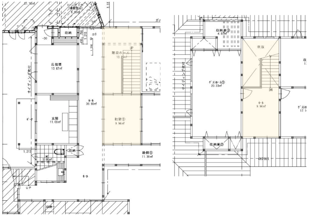
2階と外部からの動線(絵の搬入出・ゲスト)を考慮し階段の位置を変更。1・2階の和室を使い、新たにゆったりと吹き抜けのある階段ホールを設け、ギャラリーとして活用。窓には日射遮蔽型ガラスで高断熱と遮蔽を両立した。
お施主様の感想
リモデルしてスマイルになったこと
階段が広くなり、2階を有効に活用できるようになり、絵の保管にも困らなくなった。箱にしまったままだった絵を飾るギャラリーもできて、お客様を招く楽しみも増えた。吹き抜けができて家が明るくモダンになって嬉しい。



































