- HOME
- 施工事例一覧
- 部分リフォーム事例一覧
- 野々市市 K様 部分リフォーム
野々市市 K様 部分リフォーム
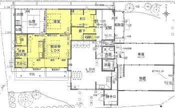
二世帯住宅への道標 ~2段階リフォーム計画~


リフォーム前![]() |
リフォーム後![]() |
リフォーム前のお施主様の悩み・ご要望
●県外に住む息子家族といずれ同居を考えているが、話がなかなか進まない。
●同居が決まったタイミングで二世帯住宅にしたいが、それがいつになるのかははっきりしない。
● 築50年の家は老朽化が進み、耐震面も気になる。
● 16部屋もあるがほとんど使っていない。
● 主壁の和室や欄間、雪見障子などの趣は残したい。
● 引っ越しや片付けの負担が大きくなるのではと心配。

LDK
リフォーム前![]() |
リフォーム後![]() 奥様憧れの回遊できるキッチン
|
水まわり
リフォーム前![]() 元々は和室でした |
リフォーム後![]() LDKに隣接し、ヒートショックの心配も軽減 ![]() 水まわりはテラスに直接出入りできる |
雪見障子
リフォーム前![]() |
リフォーム後![]() お気に入りの雪見障子は 3枚引きで開け放せるようにして再利用 ![]() |
解決方法・工夫点
● 使っていない和室部分を親世帯の居住スペースとし、新たに水廻りを設けた。工事中は既存の水廻りをそのまま使用できる。
● 既存の水廻りは第2期工事(子世帯エリア)でリフォーム予定。
● 今回は親世帯エリアのリフォーム範囲で耐震補強工事をした。
● 2期工事の際行う耐震補強は補助金を使ってリフォームできるよう計画。
お施主様の感想
リモデルしてスマイルになったこと
気になっていた耐震補強やバリアフリー工事ができ、安心して暮らせるようになりました。
使っていなかった和室を活用して、欄間や雪見障子も活かし、居心地の良い空間になりました。
今まで玄関でこっそりタバコを吸っていた主人も庭のウッドデッキがお気に入りで、孫とバーベキューをするのを今から楽しみにしています。
実はお嫁さんが2人目出産間近で我家に帰省して出産予定なんです。
快適な環境で迎えてあげられて良かったです。
里帰り出産をして、二世帯住宅のイメージも膨らむと思います。
同居も夢も思っていたより早く叶いそうで嬉しく思っています。
使っていなかった和室を活用して、欄間や雪見障子も活かし、居心地の良い空間になりました。
今まで玄関でこっそりタバコを吸っていた主人も庭のウッドデッキがお気に入りで、孫とバーベキューをするのを今から楽しみにしています。
実はお嫁さんが2人目出産間近で我家に帰省して出産予定なんです。
快適な環境で迎えてあげられて良かったです。
里帰り出産をして、二世帯住宅のイメージも膨らむと思います。
同居も夢も思っていたより早く叶いそうで嬉しく思っています。
















































