- HOME
- 施工事例一覧
- 部分リフォーム事例一覧
- 小松市F様 部分リフォーム
小松市F様 部分リフォーム
直下率100%!蔵リフォームで安心に暮らす


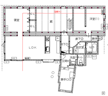
リフォーム前![]() ![]() |
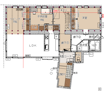
リフォーム後![]() ![]() |
リフォーム前のお施主様の悩み・ご要望
- 子供たちが成長するにあたり、子供部屋を作りたい
- リビングを広げたい
- 傾きや湿気を解決したい
- 構造上強い蔵を利用して居室にしたい

リビング
リフォーム前![]() |
リフォーム後
明るく開放的な吹き抜けのリビング |
▲ページトップへ戻る
子供部屋
リフォーム前![]() |
リフォーム後![]() 既存の梁を残し、耐久性を落とさないようにしました |
▲ページトップへ戻る
階段
リフォーム前![]() |
リフォーム後![]() 急勾配で暗かった階段が明るく上りやすくなりました ![]() 階段下には収納スペースも |
▲ページトップへ戻る
蔵
リフォーム前![]() |
リフォーム後![]() 2階の蔵も綺麗に生まれ変わりました ![]() ![]() 立派な梁が見える広々空間です |
水回り
リフォーム前![]() ![]() |
リフォーム後![]() トイレを床から浮かせてお掃除が楽々に ![]() 新しい洗面台で快適になりました |
解決方法・工夫点
- 太い柱や梁を残し、構造的に弱くならないよう注意した
- 直下率(1階と2階の柱・壁のバランス)100%の構造を活かし、居室にすることで災害に耐えうる計画にした。
- 随所に上げ下げ窓を採用し、隣地が近い環境でも採光が取れるよう工夫した。
お施主様の感想
リモデルしてスマイルになったこと
暗くて狭かった蔵が、明るく居心地の良い場所になり大変うれしい。これまでは家財を守ってくれていた蔵が、
今後は私たちを守ってくれるものになり感慨深い。
今後は私たちを守ってくれるものになり感慨深い。






















































