- HOME
- 施工事例一覧
- 減改築リフォーム事例一覧
- 加賀市N様 部分リフォーム
加賀市N様 部分リフォーム
“まちの郵便局”から光が差し込む“我が家”へ


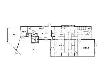
リフォーム前![]() |
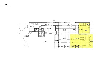
リフォーム後![]() |
リフォーム前のお施主様の悩み・ご要望
- 家の一部で長年簡易郵便局をしており、店の様子が分かるように自分たちは窓のない暗い4畳半を居間として使っている。
- かつて町の人が集ったこの場所を今度は家族が集う空間にしたい。

外観
リフォーム前![]() ![]() |
リフォーム後![]() 看板建築で増築した部分を撤去し、かつての姿を取り戻した外観。 ![]() 格子の目隠しで外からの視線をシャットアウト。 |
玄関
リフォーム前![]() ![]() ![]() |
リフォーム後![]() ![]() |
リビング
リフォーム前![]() ![]() ![]() |
リフォーム後![]() 家族がTVを見たり運動したり、思い思いのことを愉しめる空間に。 ![]() 格子から差し込む光で明るいリビング。 |
解決方法・工夫点
- 道路に面した旧郵便局部分と6帖の納戸をつなげ、北側の安定した光と風をリビングに取り込んだ。
- 家のすぐ目の前が車や人通りも多いため、安心できるよう外壁ラインを2階に揃え、手前に格子を設けることで外からの視線を遮った。
- 外観は郵便局の看板建築から本来の屋根を復元し、モダン町屋に仕上げた。
- 内装は明るくナチュラルテイストに。90年前の和裁台をTV台にリメイクした。
お施主様の感想
リモデルしてスマイルになったこと
歴史ある住まいが明るく素敵なデザインになって嬉しい。格子があることで外からの視線を気にせず寛げます。新しく生まれ変わった家に感動しています。




















































