- HOME
- 施工事例一覧
- 減改築リフォーム事例一覧
- 大野市 M様 古民家再生リフォーム
大野市 M様 古民家再生リフォーム
星の里に住まう ~危険と隣り合わせだった家~


リフォーム前![]() |
リフォーム後![]() |
リフォーム前のお施主様の悩み・ご要望
家の裏には谷があり、老朽化が進む家は年々傾いているように感じていた。今後を考え、便利な市内へ移り住むことも考えたが家族と話し合い、自然豊かなこの土地で暮らすことを選択した。

リビング
リフォーム前![]() |
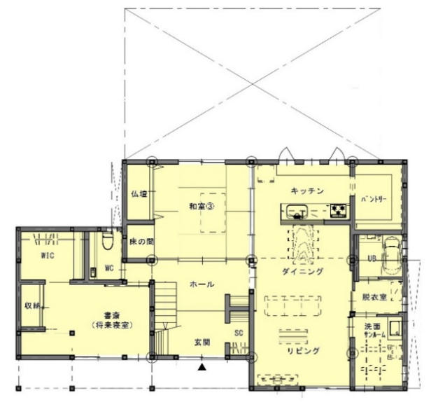
リフォーム後LDKに付随して水回りを計画することで、ヒートショックを予防。南北の風通しも考えた間取りを計画した。 |
和室
リフォーム前![]() |
リフォーム後減築することで谷までの距離を確保し、安全性を高めた。減築部分に使われていた欄間や襖は移設して継承した。 |
玄関
リフォーム前![]() |
リフォーム後 |
解決方法・工夫点
Low-E複層ガラス、外張り断熱、床天井に断熱材を施工し、断熱性能を向上。
お施主様の感想
リモデルしてスマイルになったこと
リフォーム前はそれぞれの部屋に籠りがちだったが、今はLDKで過ごす時間が増えた。寒い冬の朝でもほんのり暖かさを感じ、断熱性能を実感した。また減築した和室にあった欄間を気に入っていたので再利用してもらえて嬉しい。





































