- HOME
- 施工事例一覧
- 減改築リフォーム事例一覧
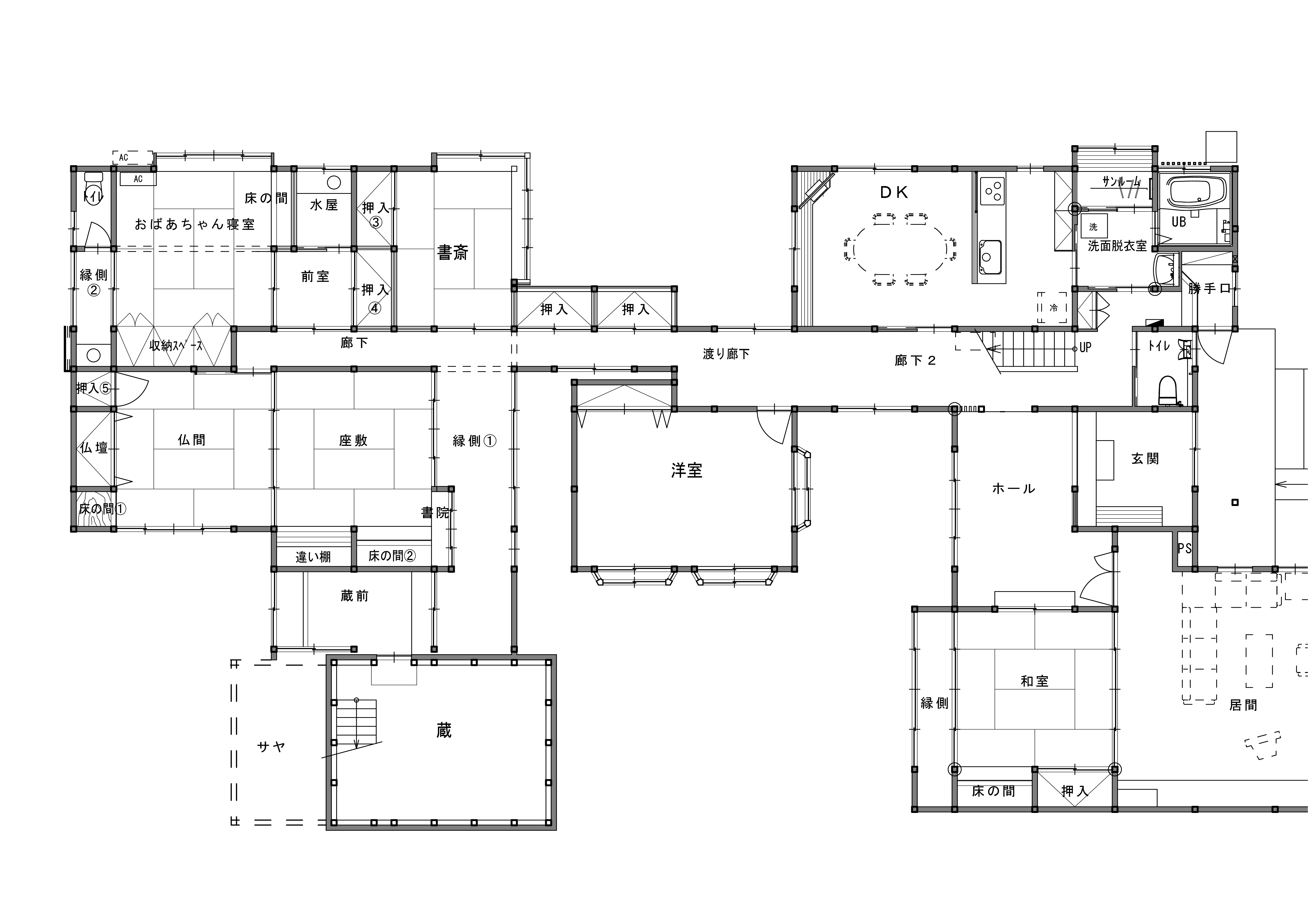
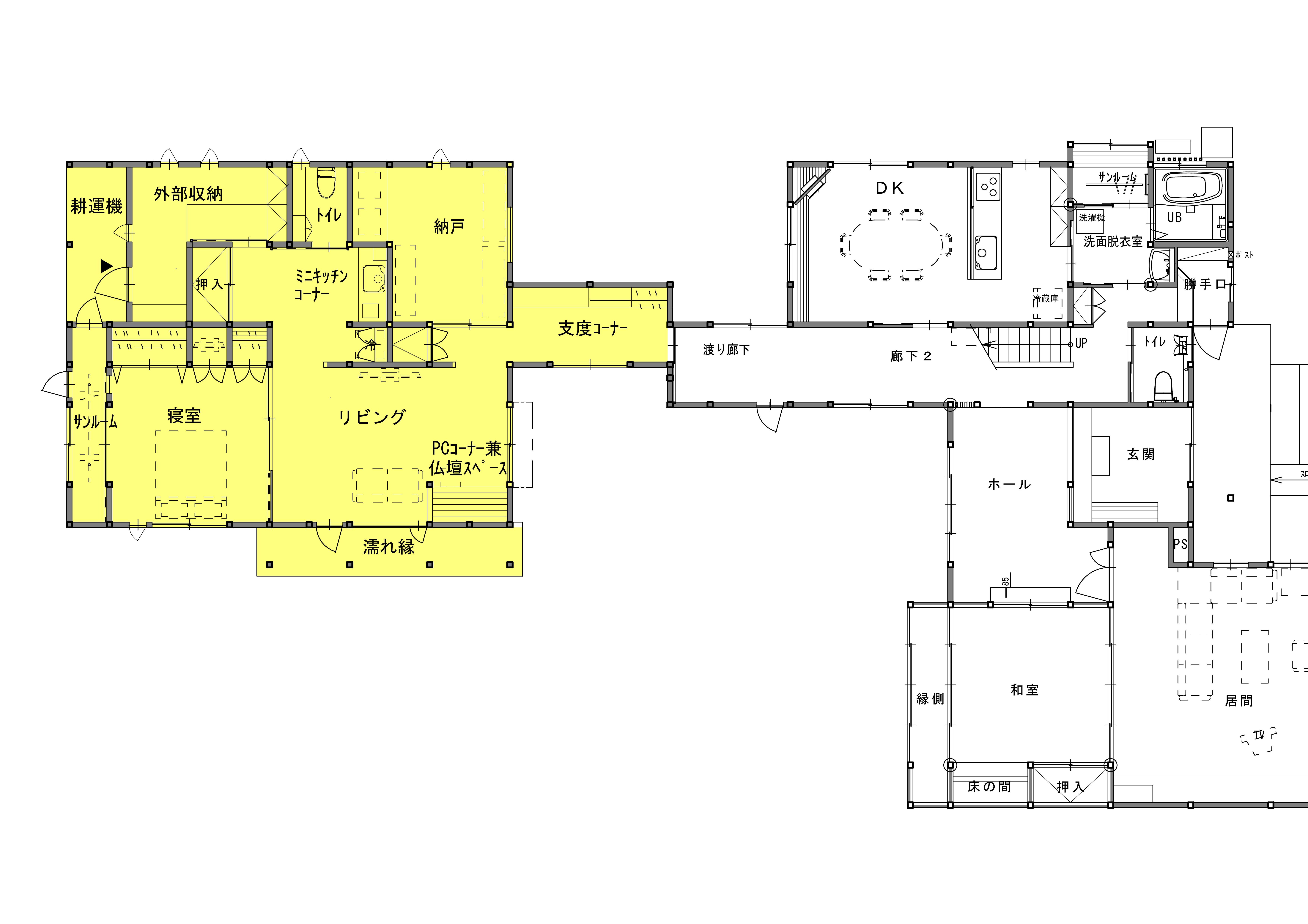
- 小松市 H様 減改築リフォーム
小松市 H様 減改築リフォーム
蔵を減築して仏間が明るい自分たちの居住空間に


リフォーム前![]() |
リフォーム後![]() |
リフォーム前のお施主様の悩み・ご要望
●将来息子家族が移り住む時にいつでも受け渡すことができるようにしたい。●自分たちの老後に備えて1階に自分たちの生活拠点を移したい。
●今まで2世帯で暮らしていたが両親が他界し夫婦2人になった。食事以外は基本2階が生活拠点だった。

リビング
リフォーム前![]() |
リフォーム後![]() 1階に拠点を移し、 ![]() リビングの傍らにはパソコンコーナー兼仏壇スペース |
寝室
リフォーム前![]() |
リフォーム後![]() リビングの隣の寝室で ![]() スクリーンパーティションでリビングと仕切れる |
ミニキッチンコーナー
リフォーム前 |
リフォーム後![]() 洗面台にはIHヒーターを取付け |
身支度スペース
リフォーム前 |
リフォーム後![]() じめじめした渡り廊下は減築したことで |
トイレ
リフォーム前![]() |
リフォーム後![]() 寝室近くのトイレは |
外観
リフォーム前![]() |
リフォーム後![]() 蔵を減築した南西面は人工芝を敷き詰め |
解決方法・工夫点
●蔵・物置・洋室を減築することで今後の維持管理がしやすくなった。また、光と風を取り込めるようになり居住性を高めた。
●この地域で一般的な1間幅の仏壇と2間続きの和室を廃止。将来息子家族が大きな仏壇を管理する事が負担になると考え、1尺幅のコンパクトな仏壇への買い替えをすすめた。
●足腰の衰えによる急な階段の昇り降りの不安と将来息子家族との2世帯同居に備え、かつて両親が生活した部分を夫婦の空間に。慣れ親しんだライフスタイルを1階でそのまま行えるよう、現在2階にある寝室・リビング・水廻りを1階に設けた。
●ご主人が、お父様と建てた想いの詰まった住まい。書院に使われていた組子や違い棚などを建具や空間のアクセントとして再利用した。
お施主様の感想
リモデルしてスマイルになったこと
今、元気なうちに思い切って蔵を減築して生前整理ができてよかった。将来への不安が消え、これから安心して過ごすことができます。日中も家で過ごすことが増える中、明るいリビングで過ごす毎日はとても気持ちがいいです。













































