- HOME
- 施工事例一覧
- ペットリフォーム事例一覧
- 七尾市 A様 リフォーム
七尾市 A様 リフォーム
我が家の中心はオープンLDK


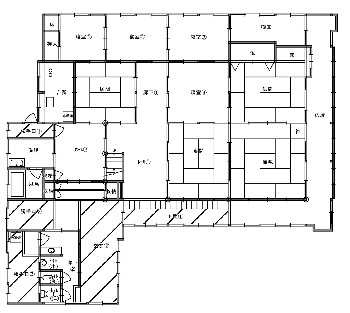
リフォーム前![]() |
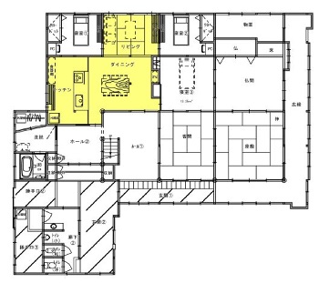
リフォーム後![]() |
リフォーム前のお施主様の悩み・ご要望
広いおうちなのに家族が集まる空間が狭い。親戚が集まった時の為に広々としたLDKにしたい。

LDK
リフォーム前![]() |
リフォーム後![]() 築53年の古さが功を奏して立派な梁が出現しました。 天井をはがして、開放的なゆとりと、 目を引く空間のアクセントになりました。 ![]() 大人数が集えるオープンLDKです。 いつも顔を合わせていた家族ですが、 もっとコミュニケーションがとりやすくなりました。 |
リメイク
リフォーム前![]() |
リフォーム後![]() 間仕切のないオープンLDKながら、 ダイニングを中心に配置することで、程よい距離感に。 既存の組子を再利用した衝立でおしゃれに空間を分けます。 |
お施主様の感想
リモデルしてスマイルになったこと
家族の顔を見ながらキッチンに立てるようになりました。
以前は暗く、狭い空間でしたが、開放的で明るく暖かい空間になり
家族といる時間がより快適で楽しくなりました。

































