- HOME
- 施工事例一覧
- 外観リフォーム事例一覧
- 小松市T様 外構リフォーム
小松市T様 外構リフォーム
視線を遮るエクステリア


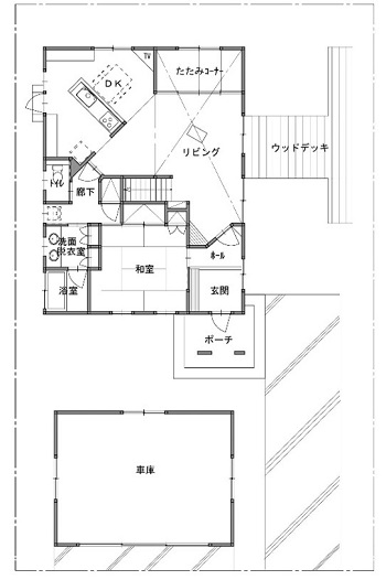
リフォーム前![]() |
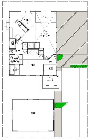
リフォーム後![]() |
リフォーム前のお施主様の悩み・ご要望
- 人通りの多い道路沿いに建つ家で、道路からの視線が気になる
- ウッドデッキが傷んでいてシロアリが発生している
- 将来的には和風な平屋にしたい

外構
リフォーム前![]() ![]() |
リフォーム後![]() 道路からの視線が気にならない外構 ![]() 将来、リフォームで和風な平屋にしても合うデザイン
塀と植栽でプライバシーを確保しました |
解決方法・工夫点
- 道路からのプライバシー確保については、目隠しの塀と合わせて植栽もご提案した
- 将来的に和風な平屋の外観になっても合うようなデザインをご提案した
- 相談をいただいた当初は外壁・窓のリフォームも希望されていた ⇒ 住まいの診断をした結果、外壁は今すぐ変えなくても良い状態だったため、水廻りなどの入替のタイミングで大規模リフォームをすることをおすすめ
お施主様の感想
リモデルしてスマイルになったこと
以前から道路からの目線が気になっており、外で何かをするということはほぼなかったが、これからは気にせず外に出ることが出来て嬉しい。また、植栽を植えたことで素敵な外構になった。



































