- HOME
- 施工事例一覧
- LDKリフォーム事例一覧
- 野々市市 M様邸 LDKリフォーム事例
野々市市 M様邸 LDKリフォーム事例
夫婦ふたりが暮らしやすい家



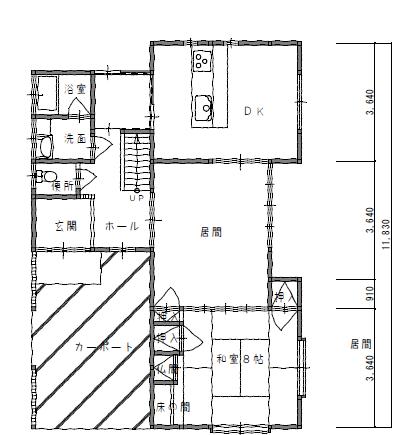
リフォーム前 |
リフォーム後 |
リフォーム前のお施主様の悩み・ご要望
- 将来的なことを考えて2階の寝室を1階にもっていきたい
- キッチンの使い勝手が悪い
- 普段はダイニングに居ることが多く、居間はほとんど使っていない。客間のようになっている。

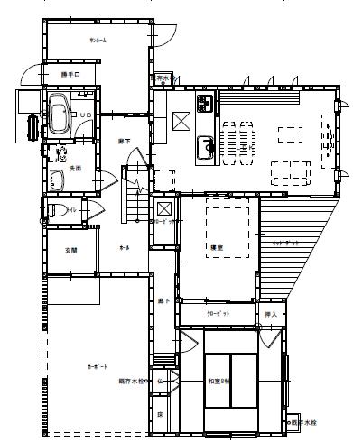
外観
リフォーム前![]() |
リフォーム後![]() 外壁を塗装したことで落ち着いた色合いになりました。 |
リビングダイニングキッチン
リフォーム前![]() |
リフォーム後![]() DKを1坪増築し、ゆったりと使えるようにしました。断熱材をしっかり入れて快適に過ごせるようになりました。 ![]() キッチンは収納力もあります。 |
ウッドデッキ
リフォーム前![]() |
リフォーム後![]() ガーデニングが趣味の奥様の為にDKからすぐお庭へ出られるようにウッドデッキを新しく設けました。 |
解決方法・工夫点
- 2階への上り下りが大変になってきたので、ほとんど使われていなかった1階居間を寝室にしました。
- 対面キッチンでコミュニケーションもとれます。収納力もあるので、スッキリ片付けられます。
- DKを1坪増築し、ゆったりと使えるようにしました。
お施主様の感想
生活スタイルの変化
DKから直接外に出られるようになったので、ガーデニングを楽しむ時間も増えました。
リモデルしてスマイルになったこと
今まで夏暑く、冬は寒いダイニングでしたが断熱材をしっかりいれて快適に過ごせるようになりました。























