- HOME
- 施工事例一覧
- LDKリフォーム事例一覧
- 加賀市 H様 LDKリフォーム事例
加賀市 H様 LDKリフォーム事例
自然光のある暮らし


リフォーム前![]() |
リフォーム後![]() |
リフォーム前のお施主様の悩み・ご要望
- LDKの横に物置を増築したので、日中LDKに光が入らず真っ暗。開放的にしたい。
- 母が一人暮らしで、心配。自分たちが同居するにあたって夫婦の生活スペースが必要。しかし、将来二世帯になる可能性もあるので、どうしたらよいか分からない。
- 室内に物干しできるようにしたい。
- キッチン周りの収納が少なく、ごちゃごちゃしている。

リビング
リフォーム前![]() ![]() |
リフォーム後![]() 玄関から近く、家族が集まる家の中心に。テレビ背面はご主人お気に入りのアクセントタイルを貼りました。 ![]() LDKに取り込んだ広縁部分はサンルームの役割も担います。 |
キッチン
リフォーム前![]() |
リフォーム後![]() 丸いカウンターでカフェ気分。外でのバーベキューの時も大活躍です。 |
解決方法・工夫点
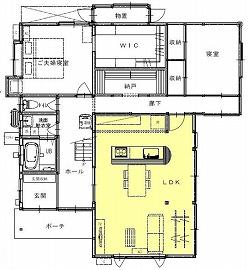
- 使っていなかった和室を利用して、LDKを南側に配置しました。
- 将来性を考慮して、2階を触らず、1階に生活スペースをまとめました。
- 効率的に物干しできるよう、LDKの暖房を利用できるプランとしました。
- キッチン後ろに充実した収納スペースを設けました。
お施主様の感想

生活スタイルの変化
日中に自然光が入る明るいリビングになり、気持ちが良いです。友人を沢山よんで、皆でバーベキューをすることが大好きです。キッチンと外が繋がり、料理の準備や洗い物がさっとできるようになり、とても便利になりました。
リモデルしてスマイルになったこと
テレビ背面のタイルを友達に自慢したり、休日に家族で映画を見たり、とても居心地のよい空間になって、とても嬉しいです。




























