- HOME
- 施工事例一覧
- LDKリフォーム事例一覧
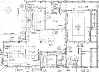
- 小松市 S様邸 LDKリフォーム事例
小松市 S様邸 LDKリフォーム事例
「憩×modern living」~夫婦これからリフォーム~



リフォーム前![]() |
リフォーム後![]() |
リフォーム前のお施主様の悩み・ご要望
- 将来二世帯になるかもしれないが、リフォームをする時期にはきている
- 若世帯スペースを確保しても、まだ空間が広いので維持管理が大変。将来的なメンテナンスも楽にしたい
- 人が集まる機会が多く広いスペースが必要。長男なので仏間も必要
- 猫を2匹飼っているので猫のことも配慮してほしい
- 家事コーナー・PCコーナーがほしい
- タイヤや趣味のスノボ・釣りグッズを置くスペースがほしい
- 帯瓦にいるえびす様を残してオブジェにしてほしい
- いつもは2階の和室に洗濯物を干している。上り下りも大変なのでサンルームがほしい
- 納戸がほしい
- 留守中でも換気ができるようにしたい

玄関・ホール
リフォーム前![]() ![]() |
リフォーム後![]() 壁一面の大容量収納でいつもでスッキリと保つことができます。 ![]() ステンドグラス、オリジナル和紙の建具、飾棚とパッと目を引く工夫が...。飾棚下には白石敷き、えびす様がお出迎えします。 ![]() リビングから優しい光が差し込むステンドグラス。 |
リビング
リフォーム前![]() |
リフォーム後![]() ゆったり寛げるリビング空間。 ![]() リビング一角にはキャットウォークをつくりました。空間の雰囲気はそのままに少しの遊び心を...。 |
ダイニング
リフォーム前![]() |
リフォーム後![]() キッチン横のダイニングスペースは配膳・片付けがとってもスムーズです。キッチン横にはPCコーナーを設けました。 ![]() キッチン前にはカウンターを設け、大勢人が集まっても一緒に食事をとることができます。また会話を楽しみながらの食事も...。 |
キッチン
リフォーム前![]() |
リフォーム後![]() 明るいキッチンはリビングとも一体感があります。 ![]() キッチン奥には勝手口を設けました。 |
洗面所
リフォーム後![]() 収納充実の洗面所。 |
浴室
リフォーム前![]() |
リフォーム後![]() あたたかく、お手入れも楽なユニットバス。洗面と脱衣室をわけたことでゆったりと身支度ができます。 |
トイレ
リフォーム前![]() ![]() |
リフォーム後![]() 玄関ホール横のトイレ。強化ガラスの手洗いボウルとこだわりの配色が鮮やかなモザイクタイルでおしゃれにアクセント。 ![]() シンプルな空間の中、アクセントクロスが引き立っています。 |
和室(仏間)
リフォーム前![]() |
リフォーム後![]() 既存の建具をそのまま活かし、壁は珪藻土としました。 ![]() オリジナル和紙を使ってリメイクした建具が空間のポイントとなっています。引き戸をあけると、リビングと広々一体空間として使えます。 |
縁側
リフォーム前![]() |
リフォーム後![]() 将来若世帯用として使えるスペースへと続く縁側。将来、縁側奥に玄関を設ければ、玄関別の二世帯住居にすることも可能です。 |
サンルーム
リフォーム前![]() |
リフォーム後![]() サンルームは1階に設けました。玄関横なので、帰宅後すぐに仕事着を洗濯機へ。 |
解決方法・工夫点
- 離れの部分と2階のスペースがあれば将来二世帯にするには充分なスペースが確保できるので、5年後、10年後を見据えたプランとしました。1階部分をご夫婦の生活スペースとしてリフォームしました。
- 一部減築し、維持管理の負担を軽減しました。また減築したことで駐車スペースも確保でき、将来家族が増えても安心です。
- 仏間は残し、建具をあければリビングと続き間としてお使いいただけるようになりました。
- キャットウォークをつくりました。また滑りにくい床材、クロスの一部はペット用クロスを採用しました。柱もメラミン巻きをして爪対策もばっちりです。
- キッチン横にPCコーナーを設けました。レシピ検索しながらのお料理も楽しめます。
- 車からすぐに出し入れできる位置に外部収納を設けました。
- 玄関先でお出迎えするスペースにえびす様をもってきました。
- 玄関横にサンルームを設けました。サンルームにも洗濯機を設置したので、仕事着をすぐにいれることができます。
- 一部を納戸スペースにしました。湿気がこもらず換気できるように上部に窓を設けました。
- 要所要所に人が入れないサイズの窓を設け、留守中の換気もできるようにしました。縁側の窓も欄間ありの窓にし、風通しのよい家づくりをしました。
お施主様の感想

生活スタイルの変化
1階のサンルーム、収納も充実したりと毎日の家事がスムーズに進みます。風通しの良い空間でゆっくり寛げます。
リモデルしてスマイルになったこと
現在の暮らしを楽しみながら、将来二世帯となった時にも対応できる住まいになり喜んでいます。















































