- HOME
- 施工事例一覧
- 水まわりリフォーム事例一覧
- 金沢市 N様 水まわりリフォーム
金沢市 N様 水まわりリフォーム
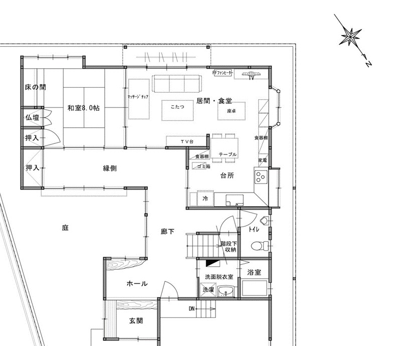
ダイニングスペース~水廻り動線に沿ってつくられた8.6メートルの収納スペースが大活躍


リフォーム前![]() |
リフォーム後![]() |
リフォーム前のお施主様の悩み・ご要望
- 収納スペースが少ない為、家具を色々買い足した事でインテリアの統一感がない家になっている
- 物も多く、収納しきれていない。ダイニングテーブルはトースターやポットなど細々した 物の置き場所になってしまっている
- 家中が寒い。特にお風呂と脱衣室が寒くて困っている。出来ればもう少し広いお風呂にしてゆっくり寛ぎたい

リビング
リフォーム前![]() |
リフォーム後![]() 広くなり断熱工事をしたことで、 |
脱衣室
リフォーム前![]() |
リフォーム後![]() キッチンから直接行ける動線がとても便利です |
ダイニングキッチン
リフォーム前![]() |
リフォーム後![]() 一直線にのびる収納のおかげでとてもスッキリ物が片付きます |
解決方法・工夫点
-
建具や収納の色を統一させることでお部屋をすっきりと広く見せることができます
-
必要な物の置き場所を決めることで片付けやすくなります
-
水廻りの家事動線に沿った奥行45cmの長い収納スペースをご提案
お施主様の感想
生活スタイルの変化
廊下を取り込み、LDKや水廻りのスペースが広くなったことで、体の大きい主人や息子も快適に過ごせるようになりました!
また、収納スペースがなく、これまでは色々な家具を置いていましたが、リフォームをして収納家具が一ヶ所に集まり、どこに何をしまうのかが明確になり、スッキリと暮らせるようになりました♪
リモデルしてスマイルになったこと
ずっと気になっていた不便な収納が使いやすくなり、快適になりました。工事中も職人さんの仕事ぶりを見ていて、気持ちよく安心して工事をお任せできました。



























