- HOME
- 施工事例一覧
- 水まわりリフォーム事例一覧
- 金沢市 D様邸 水まわりリフォーム事例
金沢市 D様邸 水まわりリフォーム事例
夫婦これからリフォーム



リフォーム前![]() |
リフォーム後![]() |
リフォーム前のお施主様の悩み・ご要望
- 水まわりが老朽化して、孫達が来ても家のお風呂には入れない
- キッチンが離れている為、奥様がキッチンで孤立してしまう。その上、使い勝手も悪い。
- 湿気が多く、押し入れの荷物もカビが出て、白蟻が発生した
- 車が4台あるが3台しか停められない状態
- 年頃の娘さん2人はもう嫁に行く為、将来を見据えて夫婦2人が使いやすく、孫達が来たときに広く使えるようにしたい

玄関
リフォーム前![]() |
リフォーム後![]() 新たに収納を設け、収納力UPしました。 |
リビングダイニング
リフォーム前![]() ![]() |
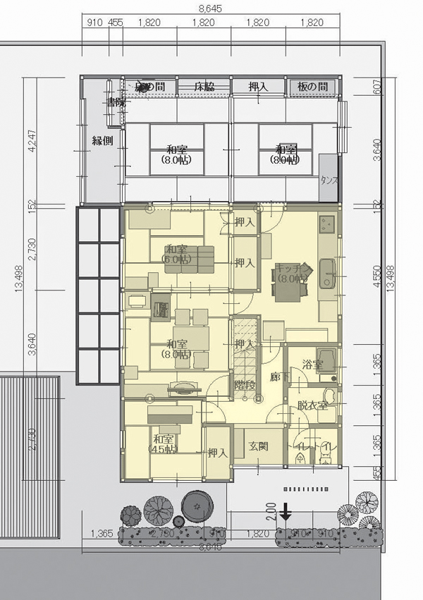
リフォーム後![]() 対面キッチンでお孫さんが集まった時も開放的に使えるようになりました。湿気対策は床下に防湿シートを敷き、竹炭を施工してあります。 ![]() 玄関横の4.5帖の和室に台所を移動し、LDKにすることで奥の続き間の和室と繋げて広く使えます。ピアノもすっきり収納することでリビングにあっても気になりません。 ![]() キッチンの対面部分にはパソコンコーナーやマガジンラック、広い配膳カウンター等、主婦が使いやすい工夫がいっぱいです。 |
キッチン
リフォーム前![]() |
リフォーム後![]() 対面キッチンにしたことで会話を楽しみながら家事ができます。広い配膳カウンターも奥様が使いやすいように配慮しました。 |
洗面脱衣室・浴室
リフォーム前![]() ![]() |
リフォーム後![]() 浴室、洗面脱衣室共にゆったりと使いやすく配置しました。 |
トイレ
リフォーム前![]() ![]() |
リフォーム後![]() 小便器、大便器に分かれていた個室を1つにし、ゆったりと使いやすく配置。以前は洗面所からしか行けなかったトイレが、廊下から直接出入りできるようになりました。 |
解決方法・工夫点
- 構造的な配置は大きく変えず、予算を抑えつつ、将来を考えた計画をしました。
- 水まわりはそれぞれゆったりと使いやすく配置し、将来和室をご夫婦の寝室にしたときに、使いやすいように隣接した納戸を設けました。
- 玄関横でピアノに占領されていた4.5帖の和室は台所を移動し、LDKにすることで奥の続き間の和室と繋げて広く使えます。
- キッチンの対面部分には、ご家族が使えるパソコンコーナーや新聞や雑誌が収納できるマガジンラック、広い配膳カウンターを兼ねた地袋収納等、奥様が使いやすいように配慮しました。
- 湿気対策は床下に防湿シートを敷き、竹炭を施工してあります。
お施主様の感想
生活スタイルの変化
孫達が遊びにきても広々と過ごせました。お風呂が広くなったのと、廊下から直接いけるようになったトイレ、それに玄関収納も増えたので娘達はとても喜んでいます。自分達夫婦も将来1階の和室を寝室にした時に隣に納戸があるのは、とても使いやすいなあと思っています。
































