- HOME
- 施工事例一覧
- 水まわりリフォーム事例一覧
- 小松市 Y様 リフォーム
小松市 Y様 リフォーム
我が家のダイエット


リフォーム前![]() ![]() |
リフォーム後 ![]() |
リフォーム前のお施主様の悩み・ご要望
-
結婚を機に、高齢の女性一人暮らしだった家を中古購入したご夫婦。お子様が大きくなり、それぞれに子供部屋が必要な年齢になった為、リフォームを決意。2階を増築して子供部屋を確保したい。そのリフォームと合わせてLDKを北欧風のイメージに変えたい。
-
一人暮らし用に建てられた家だったため、4人で住むには狭い
コンパクトな家にも関わらず、ホールや廊下などの面積が大きい -
2階の洋室は、収納はあるが部屋として使うには狭い

LDK
収納→トイレ
リフォーム前![]() とにかく物が多い。 取り出しにくい押入れ。 |
リフォーム後![]() 階段下の押入れ空間を、1帖のトイレとして活用。 ![]() |
玄関・収納
リフォーム前 玄関ホールは、一坪サイズで、靴を沢山収納したい。飾り棚もあったらいいな。 |
リフォーム後
![]() 廊下の壁に収納スペースを計画。 |
施工箇所テキストテキスト
リフォーム前![]() |
リフォーム後玄関ホールの余っていたスペースに、 ![]() 階段横には、アクセントでヘリボーン柄の |
2階居室
リフォーム前![]() |
リフォーム後![]()
|
解決方法・工夫点
-
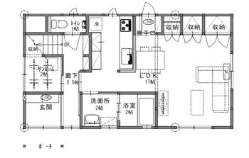
廊下等を出来るだけ居室に取り込み、延べ面積に対して廊下が占める割合を10%→4%まで削減
-
共有物は1階へ収納するため、収納スペースもを計画
8.7%→13.6%まで収納UP
-
増築することなく、間仕切りの変更で子供部屋を確保
予算を抑えて想いを叶えた
お施主様の感想
生活スタイルの変化
今あるスペースを有効活用して要望を叶えていただいたことに大変感謝しております。
それだけでなく、内装を一新して洋風なイメージに仕上がり、憧れの空間で過ごすことが出来て毎日が幸せです。
担当の方が一生懸命考えてくださった家なので、大切に住んでいきます。





台所が物で溢れているので、スッキリさせたい。
区切られた和室の居間。




玄関ホールは、一坪サイズで、靴を沢山収納したい。飾り棚もあったらいいな。
































