- HOME
- 施工事例一覧
- 水まわりリフォーム事例一覧
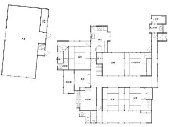
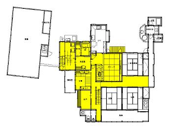
- 河北郡津幡町 K様 3世帯同居型リフォーム事例
河北郡津幡町 K様 3世帯同居型リフォーム事例
世帯毎の生活リズムを保ちつつ、家族が共に楽しめるリビングや庭が「ほどよい距離感」の大切な役割を果たす。


リフォーム前![]() |
リフォーム後![]() |
リフォーム前のお施主様の悩み・ご要望
- 8帖の居間は狭く、家族10人で寛ぐことができない
- 車庫の2階は有効に使えていない
- 冬は寒く、結露がひどい
- 夢だった薪ストーブを置きたい。また薪ストーブの廃熱を有効活用したい
- 居間から水廻りが遠く、不便

玄関
リフォーム前![]() |
リフォーム後![]() 階段位置を変え、以前の階段スペースはリビングに取りこみました。 |
リビング
リフォーム前![]() |
リフォーム後![]() ダイニングキッチンと繋がるようにリビングを設けました。 |
洗面室
リフォーム前![]() |
リフォーム後![]() リビング横に水廻りを配置し、気兼ねなく3世帯10人が利用できる |
▲ページトップへ戻る
サンルーム
リフォーム前 |
リフォーム後![]() 洗面室に隣接したサンルームはゆったりのスペースです。
サンルームに新たに設けた階段は車庫の2階スペースへと繋がり、 |
▲ページトップへ戻る
寝室
リフォーム前 |
リフォーム後![]() 母屋2階は若世帯の生活スペースとしました。 |
▲ページトップへ戻る
子供室
リフォーム前 |
リフォーム後![]() 既存の和室を洋室に...。既存を活かしつつ、アクセントクロスで |
▲ページトップへ戻る
解決方法・工夫点
- 使っていなかった客間の部分に家族が集える13.5帖のリビングをつくりました。
- 母屋と車庫を渡り廊下でつなぎ、行き来をしやすくしました。
- 車庫の2階はご夫婦の寝室として活用できるようになりました。
- リフォーム工事範囲に断熱材を施工し、断熱性を高めました。断熱性能の高い樹脂サッシを採用しました
- リビングの一角に薪ストーブを置きました。背面はコンクリートブロックで蓄熱し、玄関側に暖気を放出できる仕組みをつくりました。
- リビング横に水廻りを配置しました。三世帯10人が気兼ねなく使用できるように配置を工夫しました。
お施主様の感想
生活スタイルの変化
リビングには濡縁も設け、リビングから庭へも視線や動線がつながったので、晴れた日には庭でバーベキューをするなど
家族で過ごす時間が増えました。
リモデルしてスマイルになったこと
それぞれの生活リズムを守りつつも、自然と顔を合わせるほどよい距離感が出来ました。
末永く仲良く暮らしていけそうです。

































