- HOME
- 施工事例一覧
- 古民家再生リフォーム事例一覧
- 羽咋郡志賀町 H様邸 古民家再生リフォーム事例
羽咋郡志賀町 H様邸 古民家再生リフォーム事例



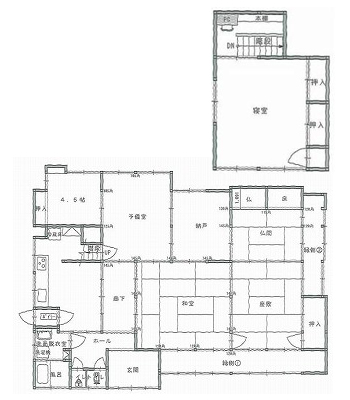
リフォーム前![]() |
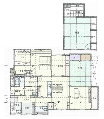
リフォーム後![]() |
リフォーム前のお施主様の悩み・ご要望
- 大きい段差が沢山あって将来的に心配
- 建具ばかりで仕切られているので寒い
- 孫が遊びに来た時に楽しめるようにしたい
- 収納スペースが少ない。玄関先とキッチンまわりはすっきりとさせたい
- 寝室が2階なので急な階段の上り下りが今後不安。これからは1階を中心とした生活をおくりたい

外観
リフォーム前![]() |
リフォーム後![]() 漆喰と下見板のコントラストがモダンな印象の外観 |
玄関ホール・下足室
リフォーム前 ![]() |
リフォーム後![]() 玄関にはスリッパラックを兼ねたベンチを設けました。 ![]() 玄関ホールには飾棚を...。 ![]() 玄関横には手洗いスペースも完備の下足室を設けました。収納力UPで玄関先がいつでもすっきり保てます。 |
リビング
リフォーム前![]() |
リフォーム後![]() 表にだした梁が魅力的なリビング。 ![]() リビング一角を畳スペースとしました。奥の仏間とつなげて広々と使うこともできます。 |
ダイニング
リフォーム後![]() ゆったりダイニングスペース。 ![]() 既存の建具も再利用しました。 ![]() 対面キッチンとなり、ダイニングもご家族のコミュニケーションスペースとなりました。 |
キッチン
リフォーム前![]() |
リフォーム後![]() 対面キッチンとなり、ご家族との会話もはずみます。 ![]() キッチンには食品庫も設けました。 |
脱衣室・浴室
リフォーム前 ![]() |
リフォーム後![]() 洗面室と脱衣室をわけました。 ![]() あたたかく、お手入れしやすいユニットバス |
トイレ
リフォーム前![]() |
リフォーム後![]() 引き戸を採用し、ゆったりとしたスペースを確保しました。 |
寝室
リフォーム後![]() 間取りをガラッと変えることにより2階にあった寝室を新たに1階に設けました。 ![]() 寝室からWIC、書斎へ直接行き来できるようになりました。 ![]() 寝室横にはWICを設け、お部屋の中をすっきりとさせました。 |
書斎
リフォーム前![]() |
リフォーム後![]() 沢山の本を収納できる本棚を完備。 |
解決方法・工夫点
- 床組を変えて、段差がなくなるようにしました。
- 間取りをガラッと変え、壁の量を増やしました。寒い廊下を通らなくてもいいスムーズな動線を確保しました。
- ダイニングキッチンとリビング、和室をつなげて使えるようにしました。DKの一角にはご主人お手製のブランコをつけられるように天井の下地を強固にしました。
- 玄関には下足室、キッチンには食品庫、ほかの空間にも収納を増やし、たっぷりと収納できるようになりました。
- ご夫婦の寝室を1階に配置し、1階を中心とした生活がおくれるようになりました。
お施主様の感想
生活スタイルの変化
家の中心にあった広くて寒かった広間の部分がガラッと間取りを変えることで18帖のLDKとなりました。リフォームしてすき間風がなくなり、あたたかい冬を迎えることができました。LDK一角にはファミリーライブラリーやブランコを設け、家族全員が楽しめる空間となりました。
リモデルしてスマイルになったこと
LDK一角に設置したブランコで孫は大はしゃぎ!強固になったブランコ下地利用でぶら下がり運動をしたりと大活躍です。今後はDIYでウッドデッキも設置予定で、まだまだリフォーム中(笑)です。











































