- HOME
- 施工事例一覧
- 二世帯同居型リフォーム事例一覧
- 羽咋郡志賀町 F様 2世帯同居リフォーム
羽咋郡志賀町 F様 2世帯同居リフォーム
自然素材が心地よい -家族の時間をつつむ安らぎの家ー


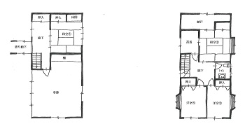
リフォーム前![]() |
リフォーム後![]() |
リフォーム前のお施主様の悩み・ご要望
- アパート暮らしで共働きなので、子供が生まれたら両親の近くで暮らしたい
- 家事のしやすい間取りにしたい
- 友達も気軽に呼べるようにしたい

LDK,玄関
リフォーム前 |
リフォーム後![]() お子様を常に感じられる対面キッチンで、子育ても安心。 ![]() 若世帯専用の玄関で、帰りが遅くなってもご両親に気遣うことなく、家に入れます。壁は能登産珪藻土で仕上げ、消臭・調湿をしてくれます。 |
洗面脱衣室・トイレ
リフォーム前 |
リフォーム後自然素材であるスギの羽目板を使用した天井と間接照明が落ち着いた空間を演出しています。 洗面脱衣室は、パウダールームも兼ねた広々オーダー洗面化粧台を設け、ゆとりのある間取りに。 |
解決方法・工夫点
- ご両親の生活スペースであった離れを若世帯の生活空間とし、ご両親の生活空間となる古民家とは、渡り廊下でつなぎ、行き来しやすくした。
- ご両親との生活リズムが異なるため、玄関、水廻りすべてが別々の完全分離型二世帯リフォームをご提案。
- 子育てに配慮したいという思いから奥様の家事動線を重視し常にお子様を感じれる間取りとした。
- 1階のスペースをエリア断熱施工をする事でヒートショック対策につなげお部屋からお部屋へ温度差なしの空間を実現。
お施主様の感想
生活スタイルの変化
両親の近くでお互いに協力しながら暮らせるようになりました。自然素材を多く使った空間や使いやすい動線で初めての子育てでも安心です。断熱施工したことで真冬もエアコン1台で過ごすことができました。
リモデルしてスマイルになったこと
子供の様子をみながら家事ができる間取りにして良かったです。また、自然素材につつまれた空間はとても居心地が良いです。
10年前に両親が御社でリフォームをして、今回は私たちが中心となったリフォーム。両親から譲り受けたこの家が私たちの生活スタイルに合ったものとなり、この先、自分たちのの子供にも継承できる家になったことには感慨深いものがあります。





























