- HOME
- 施工事例一覧
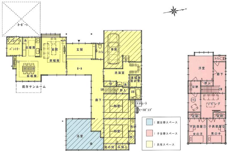
- 二世帯同居型リフォーム事例一覧
- 小松市 O様邸 二世帯同居型リフォーム事例
小松市 O様邸 二世帯同居型リフォーム事例
集うリビング・プライベートリビング
~二世帯の住まい方~
~二世帯の住まい方~



リフォーム前![]() |
リフォーム後 |
リフォーム前のお施主様の悩み・ご要望
- 居間が和室の為、車椅子が入れず、家族みんなが集えない
- 寒い
- 将来の事も考え、2階もリフォームしたい
- 子供部屋、そして1階リビングの他にプライベートリビングがほしい

玄関
リフォーム前![]() |
リフォーム後![]() 純和風の玄関。 |
リビング
リフォーム後![]() 居間とダイニングキッチン、そして廊下も取り込み広々LDKとしました。 |
ダイニングキッチン
リフォーム前 ![]() |
リフォーム後![]() 収納兼勝手口を設け、スッキリとしたキッチンになりました。 ![]() ダイニングテーブル上の照明もお部屋のポイントとなっています。 ![]() 家族そろって食事ができるようにダイニングテーブル周りもゆったりとした空間を確保しました。 |
プライベートリビング
リフォーム後![]() 2階に設けたプライベートリビング。 |
子供部屋
リフォーム後![]() 5年後、10年後のことも考え、子供部屋を2部屋設けました。 ![]() |
解決方法・工夫点
- 居間、ダイニングキッチンを一つの空間にしました。一部廊下も取り込み、車椅子対応の広々LDKとなりました。
- LDKには床暖房と強化型エアコンを入れ、冬場も安心のあたたかさです。洗面脱衣室にも床暖房を入れました。
- 2階には若世帯用のプライベートリビングを設け、2世帯でもほど良い距離感が保てます。
- 2階に子供たちそれぞれの子供部屋を設けました。
お施主様の感想
生活スタイルの変化
車椅子対応のLDKになり家族が集まれるようになりました。
リモデルしてスマイルになったこと
車椅子でも安心のゆったりとした空間になり、喜んでいます。2階にもリビングをつくったことでそれぞれの生活リズムにあった生活ができるようになりました。子供たちも自分達の部屋ができ、喜んでいます。



























