- HOME
- 施工事例一覧
- 二世帯同居型リフォーム事例一覧
- 福井市 F様 二世帯住宅リフォーム
福井市 F様 二世帯住宅リフォーム
新築から実家リノベを選択した理由


リフォーム前![]() |
リフォーム後![]() |
リフォーム前のお施主様の悩み・ご要望
- 新築で進めていたが予算オーバー。
- 実家が築26年で傷みが目立ち始めていた。
- 完全二世帯リノベで、自分たちの住まいを手に入れ、かつ、親世帯の住まいも手を入れる。
- 実家を完全二世帯にできて、新築より予算を抑え、ホテルライクな住まいが叶えられるならリノベーションで考えたい
- 子世帯が新築にした場合、親世帯も別でリフォームをしなくてはならない。
- また、将来的に実家を含めて2件の不動産を持つことになるのは維持管理が難しい。
- これらのことから新築ではなく、大規模リノベーションを選択された
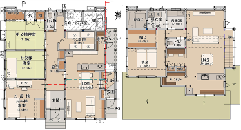
施工概要
- 工期:7か月
- 工事面積:199㎡
- 築年数:26年
- 構造:木造2階建

外観
リフォーム前![]() |
リフォーム後![]() 二世帯で気兼ねなく生活できる |
子世帯リビング
リフォーム前![]() |
リフォーム後![]() ![]() 購入予定の家具に合わせたホテルライクな設え |
子世帯寝室
リフォーム前![]() |
リフォーム後![]()
|
水廻り
リフォーム前![]() |
リフォーム後![]() 分離型洗面脱衣室は |
お施主様の感想
程よい距離感の完全二世帯で、耐震・断熱ともに安心な家にできた。
当初は土地を購入して新築を考えていたがいずれは相続で2件の家を持つことになるので
実家リノベを決断してよかったです。







































