- HOME
- 施工事例一覧
- おうちまるごとリフォーム事例一覧
- 七尾市 T様 おうちまるごとリフォーム事例
七尾市 T様 おうちまるごとリフォーム事例
as time gose by ~夫婦2人、穏やかな時間~


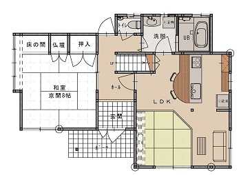
リフォーム前![]() |
リフォーム後![]() |
リフォーム前のお施主様の悩み・ご要望
- 子供も巣立ち、これから夫婦2人のセカンドライフを楽しむために、自分たちにあった住まいにしたい。
- LDKが狭く感じるので、もっと広々と使いたい
- 段差があり、これからの生活が心配。
- 素敵なデザインにして、家の中にいる時間を楽しめるようにしたい。

リビング
リフォーム前![]() |
リフォーム後![]() 臭いを低減してくれるタイルでペットの暮らしを快適に。 |
キッチン
リフォーム前![]() |
リフォーム後![]() キッチンに立ってリビングやダイニングが見渡せるようになりました。 ![]() 調味料の収納スペースを設け、コンパクトながらすっきり広々使えます。 ![]() 抜けない柱を利用した収納スペース。 |
トイレ
リフォーム前![]() |
リフォーム後![]() アクセントクロスで明るい空間に。 ![]() 九谷焼の手洗いボウルを使用。 |
お風呂、洗面脱衣室
リフォーム前![]() |
リフォーム後![]() あたたかく、お手入れも楽々なお風呂。 ![]() パネルを使って水はね防止に。 |
解決方法・工夫点
- 広さを変えずに、壁を撤去したり配置を変える事でゆったりと使っていただけるようになりました。
- つまずきやすい段差を解消し、安全に移動していただけるようになりました。
- トイレに九谷焼の手洗いボウルを使い、お気に入りの空間をつくりました。
お施主様の感想
生活スタイルの変化
ちょっとしたところに収納スペースが増えたので、毎日の片付けや掃除がとても楽になりました。また、洋室の仕切りがなくなり、LDKに光が入りやすくなりました。日中は電気をつけずに、夏は外の風を取り入れながら省エネを意識して過ごすようになりました。
リモデルしてスマイルになったこと
仕切りなどをなくしたことで、部屋を広く使うことが出来ています。段差もなくなって、今後も安心して住むことができます。お手入れのしやすい家になったので、室内で犬を飼うことになりました。新しい家族が増えて、家で過ごす時間が今まで以上に楽しくなりました。



































