- HOME
- 施工事例一覧
- おうちまるごとリフォーム事例一覧
- 福井県坂井市 H様邸 おうちまるごとリフォーム事例
福井県坂井市 H様邸 おうちまるごとリフォーム事例
「姓」と「家」を受け継ぐ



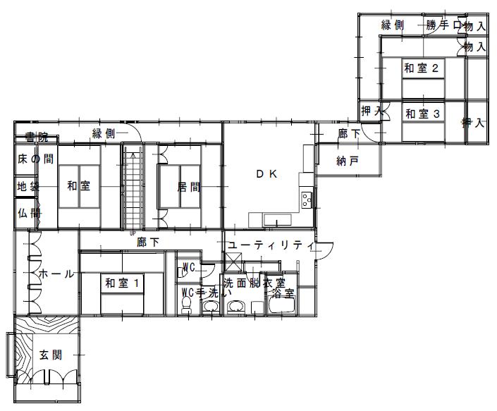
リフォーム前 |
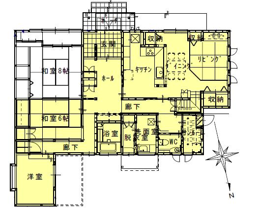
リフォーム後 |
リフォーム前のお施主様の悩み・ご要望
- 夫婦ふたりで住むには広すぎるが、子供部屋が必要になった時にも対応できるようにしてほしい
- 玄関の位置や水まわりの位置には家相も考慮してほしい

外観
リフォーム前![]() |
リフォーム後![]() 外壁には汚れが落ちにくく、色褪せもしにくいサイディングを使用しました。丸窓が印象的です。 ![]() 2色のサイディングとアプローチの乱形石タイルの色合いもよく合っています。 |
玄関ホール
リフォーム後![]() 下駄箱背面には高機能壁材を使用。室内の空気を継続的に浄化してくれます。デザイン性でも空間のアクセントとなります。 ![]() |
リビング
リフォーム後![]() リビング空間は畳コーナーとし、寛ぎの空間に...。テレビ背面にはモザイクタイルをあしらい落ち着いた印象に仕上げました。 |
キッチンダイニング
リフォーム前![]() ![]() |
リフォーム後![]() 対面キッチンでコミュニケーションもとれます。 ![]() キッチンカウンター上のガラスブロックがポイントとなっています。 |
和室
リフォーム前![]() |
リフォーム後![]() 二間続きの和室 ![]() 和室の欄間には越前和紙を挟みこみました。地域文化も取り入れ、またオリジナルのデザインが和室をおしゃれに演出。 |
トイレ
リフォーム後![]() オリジナルの手洗いカウンターは収納力もあり、トイレ空間がスッキリとします。また壁には珪藻土、ガラス丸型手洗いボウルを使用しました。 |
解決方法・工夫点
- 夫婦で住むには大きな面積だったので、一部減築をしました。また将来的に家族が増えた場合にも対応できるようプランしました。
- 家相も考慮した上で、家事動線がよくなるよう水まわりをまとめました。
- 地域文化も取り入れ、地産地消素材(越前青石、越前和紙)を使用しました。
- 建物と庭とのイメージのバランスや、高低差をどの位置で設けたらよいかなど、全体のバランスを大切にしました。
お施主様の感想
生活スタイルの変化
動線がよくなり、現在の生活スタイルにあった家になりました。
リモデルしてスマイルになったこと
これからふたりで新しい生活が始まるのが楽しみです。この家が二世代、三世代と受け継がれていけるよう大切に守っていきたいと思います。





























