- HOME
- 施工事例一覧
- おうちまるごとリフォーム事例一覧
- 福井市N様 お家まるごとリフォーム
福井市N様 お家まるごとリフォーム
3世代女子の推しが詰まった家


リフォーム前![]() |
リフォーム後![]() |
リフォーム前のお施主様の悩み・ご要望
- 能登半島地震で温水器の水漏れが発生
- ダイニングが狭く、動線も使いにくい
- 家族それぞれの好きが詰まった快適な暮らしがしたい
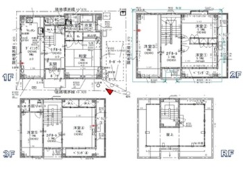
施工概要
- 工事面積:158㎡
- 築年数:40年
- 構造:重量鉄骨

外部
リフォーム前![]() |
リフォーム後和室を車庫へ |
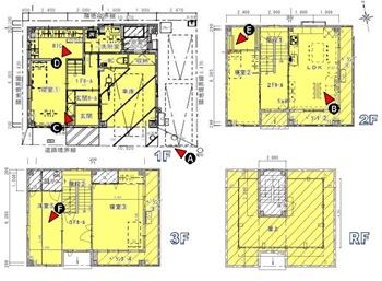
LDK
リフォーム前![]() ![]() |
リフォーム後LDKを2階に設け、インテリアは推しの部屋を参考に 壁付けキッチンでダイニングスペースを確保 |
寝室
リフォーム前![]() |
リフォーム後![]() 寝室とWICに愛犬のコーナーを設けた ![]() 寝室の一角にアトリエスペースを設けた |
解決方法・工夫点
- 狭かったダイニングや不便な動線を解消するために2階に18畳の広々LDkを新設
- 美術センスのあるご家族を中心に唯一無二の空間を作りだした
- 重量鉄骨造の熱橋を考慮した断熱計画
お施主様の感想
リモデルしてスマイルになったこと
好きが詰まった家になりました。家族の感性が活きた空間のなり大満足です。既存部分からの雨漏れのメンテナンスも対応いただき感謝です。
































