- HOME
- 施工事例一覧
- おうちまるごとリフォーム事例一覧
- 大野市M様 おうちまるごとリフォーム
大野市M様 おうちまるごとリフォーム
四季折々の変化と子供の成長を愉しむ住まい


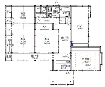
リフォーム前![]() |
リフォーム後![]() |
リフォーム前のお施主様の悩み・ご要望
- 多雪地域で冬の寒さが厳しい
- 和室は活用しにくく、収納力も低いため生活しづらい
- 寝室横にトイレがあり音が気になる
- 家事楽動線で子育てしやすい環境を整えたい
- 受け継いだ家の趣は残しながら性能向上させたい

LDK
リフォーム前![]() |
リフォーム後![]()
|
▲ページトップへ戻る
和室
リフォーム前![]() |
リフォーム後![]() ![]() 趣を残した空間になりました |
▲ページトップへ戻る
水回り
リフォーム前![]() ![]() |
リフォーム後![]()
|
▲ページトップへ戻る
寝室
リフォーム前![]() |
リフォーム後![]() 成長と共に増えるお写真もカウンターに並べ鑑賞できます |
解決方法・工夫点
- 断熱性能の高い外窓・内窓を設置し断熱材を施工しました。
- 和室2部屋をLDKにし、TV裏収納やスタディスペースで収納力が上がりました。
- トイレの位置変更と共に水廻りを充実させた間取りにしました。
- 家族専用の裏玄関からLDK,ユーティリティの動線に配慮して計画しました。
- お気に入りの縁側や和室の天井を活かし趣を活かしたデザインにしました。
お施主様の感想
リモデルしてスマイルになったこと
リビングが広くなりのびのびと過ごせています!悩んでいた収納も増え、水回りの空間も使いやすくなり
これからの生活が楽しみです。





















































