- HOME
- 施工事例一覧
- おうちまるごとリフォーム事例一覧
- 射水市M様 おうちまるごとリフォーム
射水市M様 おうちまるごとリフォーム
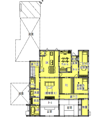
バランスが耐震補強の要


リフォーム前![]() |
リフォーム後![]() |
リフォーム前のお施主様の悩み・ご要望
・今までメンテナンスをしてこなかったため、外壁や水廻りの痛みが目立つ
・建具が一部木製で寒さが厳しい
・お子様への負の遺産とならないよう維持管理、性能向上を目的としたリフォームを決意

外観・玄関
リフォーム前![]() |
リフォーム後![]() 外壁を張り替えシックな見た目に ![]() 玄関へ入った瞬間に目の引く建具 |
LDK
リフォーム前![]() ![]() |
リフォーム後![]() リビングとDKを仕切りつつも繋がりある空間へ ![]() リビングにも光が届くよう大きな窓を設置
どこからでも行き来できるようにFCを家の中心に配置 |
水回り
リフォーム前 |
リフォーム後![]() ![]() ゆったり洗濯物が干せるように広々としたユーティリティ ![]() 腰壁にウッド調のクロスを貼り空間のアクセントに |
解決方法・工夫点
・維持管理の点から正方形に近づけるように減築
・減築しながらも自由度の高い間取りでスムーズな生活動線を確保
・解体後に発覚した想定外の事態にも柔軟に対応し耐震数値をUP
お施主様の感想
リモデルしてスマイルになったこと
性能向上リフォームで夏も冬も快適に過ごせるようになった。予算を考えながら耐震補強や減築を提案していただけて良かった。収納も増え、整理しやすくなり苦手だったお掃除が苦ではなくなった。













































