金沢市 K様邸 連続受賞事例
リビング階段の家
TOTOリモデルスマイル作品コンテスト2011 キッチン&リビング 優秀賞



リフォーム前![]() |
リフォーム後 |
リフォーム前のお施主様の悩み・ご要望
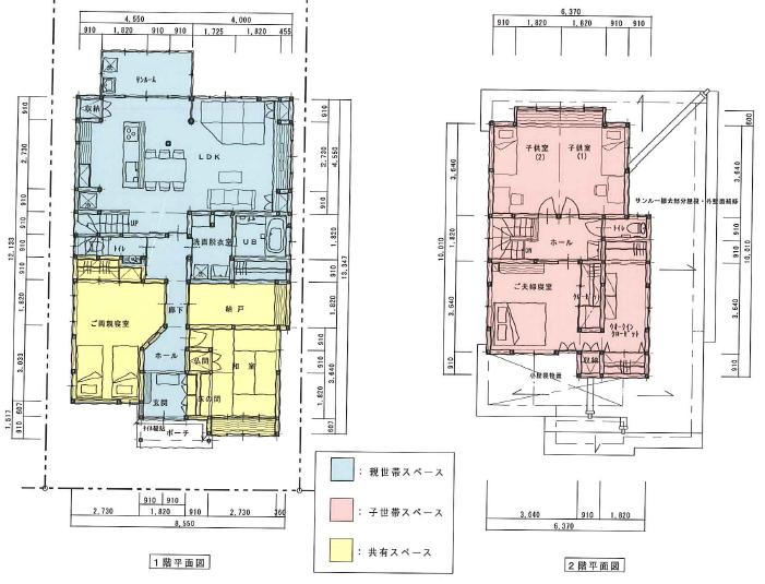
- 2世帯リフォームを希望
- 現在のリビングと台所は離れていて使いづらく、一番明るい和室と縁側は使われていない
- お母様と二人で作業しやすいキッチンにしたい
- 2世帯で洗濯物が多いので、干せるスペースが近くにほしい
- ご主人の夢のホームシアターを設置したい
- 若夫婦は共働きなのでお子様がおじいちゃん、おばあちゃんとコミュニケーションがとれるようにリビング階段にしたい
- 外壁は5年前に工事したので、なるべく活かしたい

玄関
リフォーム後![]() 玄関ホールのワンポイントにニッチを設けました。 |
リビング
リフォーム前![]() |
リフォーム後![]() リビングにはホームシアターを設置しました。 ![]() テレビの両端には飾棚をもうけました。飾棚の下は収納になっているので、スッキリと片付きます。 |
キッチン
リフォーム前![]() |
リフォーム後![]() ご家族の様子がよくわかるフラット対面キッチン。ぐるっと廻れるので、お母様とふたりでキッチンに立たれるときも便利です。 |
洗面脱衣所
リフォーム後![]() シックな印象の洗面脱衣室はゆったりとした広さを確保しました。洗濯物を干すこともできます。 |
トイレ
リフォーム後![]() スペースを有効活用したトイレ。 |
寝室
リフォーム後![]() ![]() PC兼メイクスペース。 |
サンルーム
リフォーム後![]() キッチン横ということで家事動線もよくなりました。洗濯物もたっぷりと干せる広々サンルームです。 |
解決方法・工夫点
- 日当たりが良い和室と縁側をLDKに取り込み、約25畳の広々LDKとなりました。
- フラット対面キッチンでまだ小さいお子様の姿を確認しながら家事ができます。
- キッチンはぐるっと廻れるので、お母様とお二人で立たれても使いやすい配置となっています。
- キッチン横のサンルームは家事をする上で便利な配置です。サンルーム、洗面所と2ヵ所に洗濯物が干せます。
- リビングにはご主人念願のホームシアターを設置。休日の楽しみが増えました。
- リビングの畳スペースはお子様の遊び場や洗濯物を畳んだりと重宝するスペースとなりました。
- ご家族がコミュニケーションをとれるようにリビング階段にしました。階段上にサーキュレーターを取付したので
冬場も寒くありません。
お施主様の感想
生活スタイルの変化
対面キッチンはまだ小さい子供を見ながら家事ができるので安心です。サンルームや畳コーナー、それにフラット対面キッチンにしたことで家事がしやすくなりました。
リモデルしてスマイルになったこと
LDKを中心に家族のコミュニケーションがとれるようになりました。水まわりも使いやすくなり、母と一緒に食事の支度をするときもぐるっと廻れるので作業がしやすくて喜んでいます。畳コーナーもゴロっとしたり、子供の遊び場になったり、家事スペースになったりと、とても気に入っています。念願のホームシアターで休日の楽しみがまた一つ増えました。






























