- HOME
- 施工事例一覧
- 部分リフォーム事例一覧
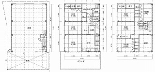
- 金沢市 O様邸 部分リフォーム事例
金沢市 O様邸 部分リフォーム事例
悩みだった階段が我が家の自慢に...



リフォーム前![]() |
リフォーム後![]() |
リフォーム前のお施主様の悩み・ご要望
- 想い出のある実家を住みやすくリフォームして大切に住み続けていきたい
- 夏は暑く、冬は寒いので何とかしたい
- 1階の工場部分を住まいとして有効につかいたい
- 階段が急で危ない
- 人が集える家にしたい
- 収納を充実させたい
- エネルギーに配慮した家にしたい

玄関
リフォーム後![]() 玄関に色々飾りたいという奥様のご要望に、ドアをあけると正面に象徴的ならせん階段を採用することで、玄関ホールをギャラリー風に演出しました。 |
らせん階段
リフォーム前![]() |
リフォーム後![]() 玄関ホールはギャラリー風に...。 ![]() 3階までつづく開放的ならせん階段。 |
リビング
リフォーム前![]() |
リフォーム後![]() 夏は暑く、そして冬は寒い居室部分は断熱を強化し、広くて開放的なLDK空間としました。 |
キッチンダイニング
リフォーム後![]() 水まわり、LDKは床暖房でとても暖かです。 |
トイレ
リフォーム後![]() 白を基調にした清潔感あふれるトイレ空間。 ![]() 壁にはステンドグラスを埋め込みました。 |
家事コーナー
リフォーム後![]() ダイニング横にはあると便利な家事コーナーを設けました。 |
書斎
リフォーム後![]() 書斎には部屋を移動できる温水ルームヒーターで冬でも暖かになりました。 |
寝室
リフォーム後![]() 書斎同様、温水ルームヒーターで暖かい空間に...。ウォークインクローゼットもあり、収納も充実しています。 |
3Fホール
リフォーム後![]() 3階にも洗面化粧台をもうけました。 |
解決方法・工夫点
- 断熱性能を高め、ガスジェネレーションシステムで電気とお湯もつくれるエコウイルを採用し、床暖房と温水ルームヒーターで快適な空間となりました。
- 1階工場部分は車庫と倉庫として利用しました。
- 急で使いにくかった階段は、らせん階段を採用し、緩やかな階段となりました。
- ベランダではバーベキューも楽しめます。
- 各空間に収納を増やし、玄関には靴が履きやすいベンチ収納、掃除用具やコートが掛けられる土間収納等機能性も重視してプランしました。
お施主様の感想

生活スタイルの変化
階段がゆるやかになり、上り下りがとても楽になりました。
リモデルしてスマイルになったこと
開放的で快適になった家で友達を呼んでホームパーティもできるようになり、とても嬉しいです。































