- HOME
- 施工事例一覧
- ペットリフォーム事例一覧
- 金沢市 M様邸 ペットリフォーム事例
金沢市 M様邸 ペットリフォーム事例
やっぱり猫がすき♪



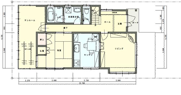
リフォーム前 |
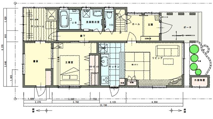
リフォーム後 |
リフォーム前のお施主様の悩み・ご要望
- 屋根の状態も気になるので見てほしい。
- 外壁も直したい。
- 猫も家族として扱ってほしい。

外観
リフォーム前![]() |
リフォーム後![]() アプローチにお客様が猫足を模った石を埋め込みました。 |
リビングダイニング
リフォーム前![]() ![]() |
リフォーム後![]() キッチンからわざわざ廊下を通ってリビングに食事を運んでいましたが、LDK形式になり、家族の様子も猫の様子も見渡せるようになりました。 ![]() ダイニングスペースは掘りごたつ式にして、 |
キッチン
リフォーム前![]() |
リフォーム後![]() キッチンはあえて段差を付けて楽しい感じに。家電や収納するものにあわせてカウンターを作りました。スライドの引き出し部分には炊飯ジャーも置けます。カウンターとキッチンの高さを揃え、看板猫のいるバーカウンター風。 |
キャットウォーク
リフォーム後![]() 猫専用の小窓とキャットウォークをつけました。 ![]() 早速キャットウォークを使っています。 |
解決方法・工夫点
- キッチンは高さを下げてお部屋に立体感を持たせました。
- 猫専用の小窓とキャットウォークをつけました。早速キャットウォークを使ってます。
- 家電や収納するものにあわせてカウンターを作りました。スライドの引き出し部分には炊飯シャーをおく予定。
- アプローチにお客様が猫足を模った石を埋め込みました。リフォームの良い記念になりました。
- これからのライフプランを人、猫共に考えご提案しました。
お施主様の感想
生活スタイルの変化
- 今では4人家族と猫4匹が家族同然で暮らしています。自分達にとっても猫にとっても暮らしやすい家になりました。家全体が明るくなりました。
- キッチンからわざわざ廊下を通ってリビングに食事を運んでいましたが、LDK形式になり、家族の様子も猫の様子も見渡せるようになりました。
- 春になってお庭のガーデニングをするのがとても楽しみです。


























