- HOME
- 施工事例一覧
- LDKリフォーム事例一覧
- 小松市 N様邸 LDKリフォーム事例
小松市 N様邸 LDKリフォーム事例
耐震の壁をのりこえる!



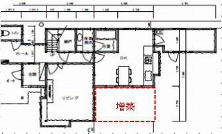
リフォーム前![]() |
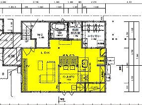
リフォーム後![]() |
リフォーム前のお施主様の悩み・ご要望
- 子供も成長し、居間が手狭になってきたので、広々としたリビングにしたい
- 対面キッチンにして夫婦でコミュニケーションがとれるようにしたい
- リビングに小上がりの畳コーナーを設けたい

リビング
リフォーム前![]() |
リフォーム後![]() 耐震の柱や壁で補強し、リビング空間を一部増築しました。 ![]() リビングの一角に設けた小上がりの畳スペースの下には収納を設けました。 ![]() 広くなったリビングには、ご主人の趣味のスペースも確保できました。 ![]() |
ダイニングキッチン
リフォーム前 ![]() |
リフォーム後![]() キッチンの上には増築部の梁型。白でまとめられたキッチンスペースのアクセントとなっています。 ![]() キッチン奥にはパントリーを設け、収納を充実させました。 ![]() 対面キッチンとなり、ご家族やお客様とコミュニケーションがとれるようになりました。小上がりは腰掛けるのに合わせた高さとなっています。 |
解決方法・工夫点
- 増築により必要となった耐力壁と柱をデザインに組込み、念願の小上がりの畳スペースでゆっくりと寛げるLDK空間となりました。
- 柱や筋交いが自然におさまるよう、クロスで抱き合わせた柱には棚板を設け、飾りスペースにしました。
お施主様の感想
生活スタイルの変化
広くなったLDK空間でゆっくり過ごす時間が増えました。
リモデルしてスマイルになったこと
念願であった小上がりの畳スペースができたこと。長方形に覆った柱の壁はちょうど背もたれになります。

























