- HOME
- 施工事例一覧
- LDKリフォーム事例一覧
- 小松市 B様邸 LDKリフォーム事例
小松市 B様邸 LDKリフォーム事例
光・風~ ようこそ



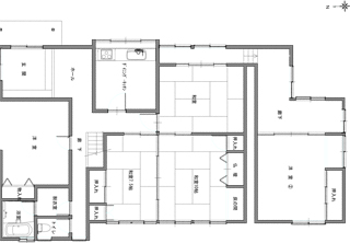
リフォーム前![]() |
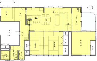
リフォーム後![]() |
リフォーム前のお施主様の悩み・ご要望
- 新築をお考えのこともあったが、将来的なこと、コスト等トータルで考えリフォームでどこまでできるのか、考えたい。
- 南側の一番良い場所にある離れ。本宅との間には、隙間がありB様の居間は、南側が全部壁で暗いため、"明るく開放的にしたい。
- キッチンは奥様が一番こだわりがあり、物の寸法に合わせた収納と、機能的に使いやすいキッチンにしたい。
- 長い間、お義父様の介護に前向きに取り組んでこられた奥様への「ご褒美のリフォームにしたい」とご主人。

リビング・ダイニング・キッチン
リフォーム前 |
リフォーム後![]() 後ろと手前の建物を一体化することで、東西南北風が通り、光が差し込むようになりました。 ![]() 既存の梁を出して勾配天井にすることで、さらに空間に広がりができました。 |
解決方法・工夫点
- 開放的で明るいLDKにするため、離れと居間をつなげ南からの光を入れました。
- 離れとのつなぎ部分は、床段差をポイントとして変化を出しフリースペースをつくることでゆとりの空間ができた。
- LDKとフリースペースは冷暖房時に仕切ることができるよう、三枚引き戸で光だけ通すように工夫。フリースペースの奥には、ウッドデッキを設け、既存の屋根を残しました。
- LDK、フリースペース、ウッドデッキと広々した空間に、リビングの梁を出した勾配天井で更に開放感がアップしました。
- 玄関から直接キッチンにつながっている引戸は奥様専用で買物から帰ってきてすぐキッチンに行けるようご提案。
- 物の寸法・配置も細かく打ち合わせをしLDKの家具も含めてトータルコーディネートをしました。
お施主様の感想
生活スタイルの変化
LDKがお気に入りで、家族が一緒にいる時間が増えました。
奥様は、お友達を招いて楽しい時間を過ごしています。
お風呂に付けたオーディオが家族みんなの癒しになっていて、お風呂が楽しみになりました。
リモデルしてスマイルになったこと
南側からの光が思った以上に差し込んで気に入っています。
リビングの勾配天井も◎
シーリングファンを付けて東西南北の窓や戸を開けると、風が通って最高に心地良いです。
お友達が遊びに来て「ステキ」と言われると、改めてリフォームをしてよかったー!と笑顔になります♪


















