- HOME
- 施工事例一覧
- LDKリフォーム事例一覧
- 河北郡津幡町 O様邸 LDKリフォーム事例
河北郡津幡町 O様邸 LDKリフォーム事例
祖父の建てた家を受け継ぐ



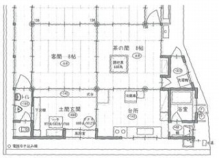
リフォーム前![]() |
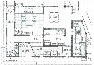
リフォーム後![]() |
リフォーム前のお施主様の悩み・ご要望
- 家が古く、寒くて、その上傾いている
- 祖父の建てた家、補強して長く住める家にしたい
- 水まわりの老朽化
- 建具など利用できるものは、再利用して想い出を残したい

玄関
リフォーム前![]() |
リフォーム後![]() 北風が特に強い為、既存土間玄関の一部に風除室を設けました。外気の流入や風の吹付けを緩和できるようになりました。 ![]() 玄関からつながる勝手口。 ![]() キッチンに隣接する勝手口には可動棚を設置し、買ってきたものをパッと収納できるようにしました。 |
リビング
リフォーム前![]() ![]() |
リフォーム後![]() 既存の天井や建具を活かした重厚感あるリビング ![]() 既存の帯戸は塗装して再利用し、想い出を大切に残しました。 |
ダイニングキッチン
リフォーム前![]() ![]() |
リフォーム後![]() 既存の天井がもつ趣をそのままの形で活かしたダイニングキッチン。キッチン奥は勝手口につながっており、使い勝手もよくなりました。 ![]() ![]() ダイニング~個室の建具にはワンポイントとして加賀友禅を使いました。 ![]() 収納が充実した清潔感のあるキッチン。 ![]() 明かり採りに、二俣和紙を挟み込みました。 |
浴室・洗面脱衣室
リフォーム前![]() |
リフォーム後![]() あたたかく、お手入れも楽になった浴室もバリアフリーでつまずく心配もなく安心です。 |
トイレ
リフォーム前![]() |
リフォーム後![]() 背面クロスの貼り分け、パーテーション上の竹、手洗いボウルが和の空間を演出しています。コーナーを利用した手洗いの下は収納となっています。 ![]() 九谷焼の手洗いボウル。磁器ならではのあたたかさを感じることができます。 |
解決方法・工夫点
- 北風が特に強いため、風除室を設けました。
- 玄関からキッチンへの裏動線を確保しました。
- 勝手口には、可動棚を設置し、パッと隠せる収納をつくりました。
- リビングとダイニングは2枚引込戸で仕切れるようにしました。
- 御坊様動線の確保、リビングを通らなくても仏間に行ける経路をつくりました。
お施主様の感想

生活スタイルの変化
補強して安心な家になりました。家事動線がとてもよくなりました。
リモデルしてスマイルになったこと
建具を再利用したり、既存を活かしたりとホッとする懐かしさを残しつつ、暮らしやすい住まいになりました。これからも長く大切にしていきたいと思います。





































