- HOME
- 施工事例一覧
- LDKリフォーム事例一覧
- 金沢市 K様邸 LDKリフォーム事例
金沢市 K様邸 LDKリフォーム事例
終の棲み処~コンパクトに省エネで暮らす~


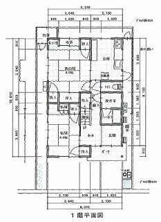
リフォーム前 ![]() |
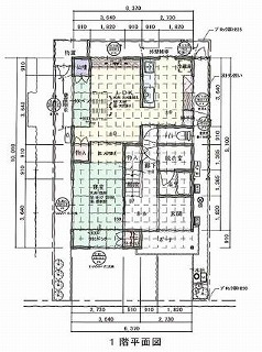
リフォーム後 ![]() |
リフォーム前のお施主様の悩み・ご要望
- 台所とリビングが分かれていてコミュニケーションが取りにくい
- 風通しが悪い
- ほとんど使われていない仏間を寝室にし、1階で全ての生活ができるようにしたい
- 奥様の趣味はステンドグラス作り。ステンドグラスを飾って楽しめるお部屋にしたい

リビング
リフォーム前![]() ![]() |
リフォーム後![]() LDK一つの空間となりました。 ![]() リビング一角に仏壇を置き、お参りしやすくなりました。 ![]() リビングにはたたみベンチを設けました。ちょっと腰掛けるもよし、ごろんと寛ぐのもよしの万能ベンチ。 ![]() 空間のポイントなるステンドグラス。光を通すと一段ときれいです。 |
キッチン
リフォーム後![]() 対面キッチンとなり、コミュニケーションがとれるようになりました。 |
寝室
リフォーム前![]() |
リフォーム後![]() 寝室にもたたみベンチを設けました。収納も増え、お部屋もすっきり保つことができます。 |
解決方法・工夫点
- 対面キッチンにして会話を楽しめるようになりました。
- 仏間はLDKの一角に設け、以前仏間だったところは寝室としました。隣接するLDKとつなげて使う事もできます。
- 既存のステンドグラスの窓を再利用したり、リビングの入口の建具には奥様が手作りしたガラスをはめ込み、オリジナル建具としました。
お施主様の感想

生活スタイルの変化
LDKひとつの空間になったので、家族のコミュニケーションが増えました。
リモデルしてスマイルになったこと
お気に入りのステンドグラスを空間のポイントとして活かすことができました。

























