- HOME
- 施工事例一覧
- 古民家再生リフォーム事例一覧
- 加賀市 T様邸 古民家再生リフォーム事例
加賀市 T様邸 古民家再生リフォーム事例
古民家リフォーム~家事楽動線~



リフォーム前![]() |
リフォーム後 |
リフォーム前のお施主様の悩み・ご要望
- 若世帯とお母様が程良い距離感で暮らせる家にしたい
- 母屋、離れ、納屋がつながっている為、広すぎて上手く活用できていない
- 家事動線をよくしたい
- 田の字の和室の雰囲気をガラッと変えたい

玄関
リフォーム前![]() ![]() |
リフォーム後![]() 明るい玄関にはまんまる照明がポイントに...。家族全員分の玄関収納も設けました。 ![]() 玄関正面には、あら目に塗った珪藻土と丸窓、飾り棚でおもてなしのアクセント。 |
リビング
リフォーム前![]() |
リフォーム後![]() 明るいリビング空間。抜けない柱も空間のポイントとして活かしました。 |
ダイニング
リフォーム後![]() キッチン前のダイニング空間。 ![]() 欄間にはアクリル板を用いて光が通るようにしました。オリジナル建具で空間に調和するやさしいアクセント。 |
キッチン
リフォーム後![]() 対面キッチンでコミュニケーションもとれます。 ![]() 勝手口から近く、収納も充実しています。 |
洗面室
リフォーム後![]() 洗面化粧台横にはドレッサー兼家事カウンターを設けました。 |
脱衣室
リフォーム後![]() 洗面室と脱衣室が別々になっているので、使用時間が重なっても安心です。 |
トイレ
リフォーム前![]() |
リフォーム後![]() ポイントクロスにアクセントの黒竹、収納の無垢板天板が和の空間を演出。 ![]() 手洗いボウルは陶磁器の持つ美しいデザイン、色味が和空間にマッチしています。 ![]() 2Fトイレ。オレンジ×こげ茶の配色がカジュアルな印象です。 |
寝室
リフォーム後![]() 寝室にはWICも隣接しています。 |
子供室
リフォーム前![]() |
リフォーム後![]() 梁がポイントとなった子供室。将来的に2部屋に分けることもできる可変性を考慮した空間です。 |
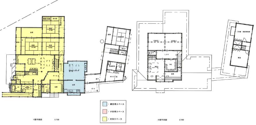
解決方法・工夫点
- 玄関、LDK、水まわりは共有とし、既存居間をお母様スペース、2階を若世帯スペースとしました。
- 納屋を解体し、母屋の使われていない和室を活用し、母屋をメインとした間取りにしました。
- キッチン~洗面・サンルーム~脱衣室の動線をつくり、短い動線で家事ができるようにしました。広い空間をとり、洗面ドレッサーや家事カウンターを設けました。
- 洗面・サンルームは既存の勝手口を再利用しました。車を降りて屋根下を通って室内に入ることができます。
お施主様の感想
生活スタイルの変化
水まわりをまとめた間取りになり、家事の負担が軽くなりました。
リモデルしてスマイルになったこと
程良い距離感で生活できるようになりました。活かしきれていなかった空間が生活スペースとして有効活用できました。






































