- HOME
- 施工事例一覧
- 二世帯同居型リフォーム事例一覧
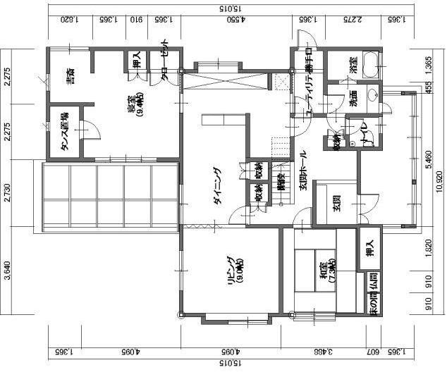
- 津幡町 T様邸 二世帯同居型リフォーム事例
津幡町 T様邸 二世帯同居型リフォーム事例
二世帯同居型リフォーム



リフォーム前 |
リフォーム後 |
リフォーム前のお施主様の悩み・ご要望
- 元々二世帯用ではないので、同居するには部屋数も足りないし、使い勝手も悪い。
- 全体的に暗く、特に食品庫は真っ暗。

ダイニング
リフォーム前![]() |
リフォーム後![]() カウンター下のスペースを活用し、蓄熱式暖房機を設置しました。またカウンター上は飾り棚になっていて、ディスプレイが楽しめます。 |
キッチン
リフォーム前![]() |
リフォーム後![]() 対面キッチンでコミュニケーションもとれるようになりました。既存の食器棚も加工して再利用しています。 |
洗面脱衣室
リフォーム後![]() 洗面脱衣室は広くとりました。混み合う時間帯も安心です。洗面化粧台上のガラスブロックから優しい光が差し込みます。 |
浴室
リフォーム前![]() |
リフォーム後![]() お手入れが楽なユニットバス。大きな窓からは坪庭の緑を見ることができます。 |
トイレ
リフォーム前![]() |
リフォーム後![]() 手洗いカウンターは収納も充実しているのでスッキリとした印象。 ![]() 将来的な事も考え、お母様のお部屋にもトイレと洗面スペースを設けました。 |
ユーティリティ
リフォーム後![]() 洗濯機を置いても広々スペースです。雨の日にも便利な洗濯物を干すスペースも確保。 |
子供部屋
リフォーム後![]() 子供部屋にはロフトを設けました。 |
書斎
リフォーム後![]() 棚を設けたので、沢山の本もスッキリと片付きます。 |
解決方法・工夫点
- 1階と2階、生活スペースを分け、各部屋に役割を持たせました。同居生活もお互いに気兼ねなく過ごせます。
- 収納も充実、明るい空間になりました。
- 将来的なことも考え、お母様の部屋にはトイレと洗面スペースを設けました。
お施主様の感想
生活スタイルの変化
親世帯、若世帯それぞれの生活リズムに合った空間になりました。
リモデルしてスマイルになったこと
同居するにあたって増築をしないと無理かと思っていましたが、ほぼ増築なしで二世帯用住宅になり喜んでいます。ほどよい距離感で生活できます。






























