- HOME
- 施工事例一覧
- 二世帯同居型リフォーム事例一覧
- 加賀市 T様邸 二世帯同居型リフォーム事例
加賀市 T様邸 二世帯同居型リフォーム事例
ちょっと増築×3で実現~趣味室もある二世帯住宅~



リフォーム前![]() |
リフォーム後![]() |
リフォーム前のお施主様の悩み・ご要望
- ご実家での同居にむけて、水まわり共有の二世帯住宅にしたい
- 第一優先は共有部分である水まわりとリビング
- ご両親が趣味を楽しめる部屋をつくりたい
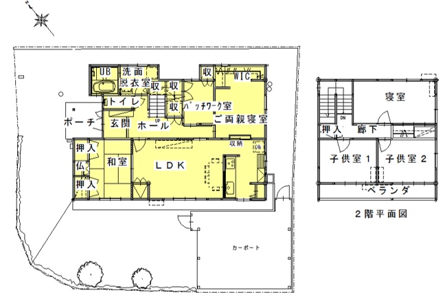
- 2階を子世帯の個室としたいので、ご両親の寝室、趣味室、クローゼットを1階に設けたい
- 長女の中学校卒業後に住まいを移せるように計画したい

外観
リフォーム前![]() |
リフォーム後![]() 必要に応じて3箇所増築しました。玄関横のスペースには水まわりをまとめ、時間を気にせず気兼ねなく使用していただけるよう配慮いたしました。 |
玄関ホール
リフォーム後![]() 既存アールのドアは気に入っているとこのことでしたので、枠ごと再利用しました。 |
リビングダイニング
リフォーム前![]() ![]() |
リフォーム後![]() 隣の和室2帖分を取り込み、またキッチン部分を増築し、ゆったりとしたLDK空間を確保しました。 |
キッチン
リフォーム前![]() |
リフォーム後![]() 対面式となり、ご家族とのコミュニケーションを楽しめるようになりました。勝手口も設け、便利です。 |
洗面脱衣所
リフォーム前![]() |
リフォーム後![]() 増築部分に水まわりをまとめました。 |
浴室
リフォーム前![]() |
リフォーム後![]() ユニットバスでお手入れも簡単、あったかお風呂となりました。 |
トイレ
リフォーム前![]() |
リフォーム後![]() 明るいトイレ空間 ![]() ニッチに小物やグリーンを飾る楽しみも増えました。 |
寝室
リフォーム後![]() ご両親の寝室を1階に新たに設けました。一部増築し、ウォークインクローゼットも設け、使いやすくなりました。 |
解決方法・工夫点
- 生活リズムが違うため、水まわり(浴室、洗面、トイレ)を気兼ねなく使用できるように両親寝室から離して配置しました。
- 1階と2階の生活音を軽減するために2階の寝室床下に遮音マットを施工しました。
- 予算内で二世帯住宅を実現するために、限られた範囲で間取りを大きく変えずに必要な場所に必要なだけ増築をしました。
- ご要望に優先準備をつけ、リビング横の和室は8帖から6帖にし、その分LDKを広く確保しました。
- 市の耐震補助金、国のバリアフリー補助金を活用しました。
お施主様の感想
生活スタイルの変化
両親が1階中心の生活をおくれるようになり、将来的にも安心できます。いつでも同居をスタートできる空間が確保されました。エリア断熱でLDKをしっかりと断熱してもらったので冷暖房効果もUPし、とても快適です。
リモデルしてスマイルになったこと
2年後の暮らしが明確になり、安心です。子供たちはおじいちゃん、おばあちゃんと暮らすことを楽しみにしていて、自分の部屋ができたことを喜んでいます。また対面キッチンとなり、キッチンに立ちながら家族の顔が見られるようになり嬉しいです。


.jpg)































