- HOME
- 施工事例一覧
- 二世帯同居型リフォーム事例一覧
- 羽咋郡宝達志水町 N様邸 二世帯同居型リフォーム事例
羽咋郡宝達志水町 N様邸 二世帯同居型リフォーム事例
二世帯住宅のくらしかた



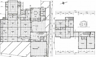
リフォーム前![]() |
リフォーム後![]() |
リフォーム前のお施主様の悩み・ご要望
- 若世帯との同居をきっかけに、車庫を若世帯用スペースにしたい
- 車が2台増えるため、駐車スペースを確保したい

玄関
リフォーム前![]() |
リフォーム後![]() 若世帯用の玄関。玄関をスッキリさせるため、壁一面を大容量収納としました。玄関にポスト口も設けました。 |
リビングダイニング
リフォーム前![]() |
リフォーム後![]() 親世帯リビング ![]() 以前の茶の間部分をダイニングキッチンと繋げて使えるようになりました。 ![]() 若世帯用のリビングダイニング ![]() ゆったりと寛げるたたみコーナーも設けました。 |
キッチン
リフォーム前![]() |
リフォーム後![]() 親世帯キッチン ![]() キッチンからも廊下へでることができ、使い勝手のよい動線を確保できました。 ![]() 若世帯キッチン。対面式でコミュニケーションを楽しむことができます。 |
洗面室
リフォーム前![]() |
リフォーム後![]() 親世帯洗面コーナー。便利な勝手口は以前と同じ場所に設けました。 ![]() 洗面化粧台横の壁面にはお手入れ面も考慮し、サニタリーパネルを貼りました。 |
トイレ
リフォーム後![]() 若世帯トイレ。手洗いカウンター、壁のタイルがシンプルな空間のポイントとなっています。 |
ウォークインクローゼット
リフォーム後![]() ゆったりとしたWIC。棚とハンガーパイプとでそれぞれの用途でスッキリと片付けることができ、また一目で収納した物がわかります。 |
解決方法・工夫点
- 若世帯と親世帯とを分ける完全二世帯住宅にしました。お互いの空間をつなぐ入口を1箇所設け、将来的にお孫さんができた時などには簡単に行き来ができます。
- 若世帯の帰宅時間が遅いので、若世帯寝室は親世帯リビングの上に配置し、生活音の気兼ねもなく、ほど良い距離感が保てます。
- ほとんど使われていなかった和室部分を一部減築し、駐車スペースを4台分確保しました。
お施主様の感想
生活スタイルの変化
お互いのプライベートを保ちつつ、安心感を得る事ができました。
リモデルしてスマイルになったこと
程良い距離感が保てるので、お互いのリズムで生活ができます。




































