- HOME
- 施工事例一覧
- 二世帯同居型リフォーム事例一覧
- 小松市 N様邸 二世帯同居型リフォーム事例
小松市 N様邸 二世帯同居型リフォーム事例
活かす父の想い...そして変わる暮らし!



リフォーム前![]() |
リフォーム後![]() |
リフォーム前のお施主様の悩み・ご要望
- 2階にもミニキッチンを備えた二世帯住宅だが、実際は1階で全員が食事をとっている。
1階の台所とダイニングスペースの老朽化が激しく、とても暗い - 鬼門が気になる。将来の家族の繁栄の為にもこの機会にしっかり見てほしい
- 和室にある欄間を活かしたい
- ご主人様専用のキッチンがほしい。ガスで思いっきり調理したい

リビング
リフォーム後![]() リビングは畳スペースとし、子供たちは思いっきり遊べ、またゴロっとすることもできる寛ぎの空間となっています。隣接する仏間ともつながりをもたせています。 ![]() 思い入れのある欄間はLDKの畳コーナーに移設しました。 |
ダイニングキッチン
リフォーム前![]() |
リフォーム後![]() お子様を見ながらお料理ができます。 ![]() キッチンカウンター部分には収納たっぷり。 ![]() ダイニングテーブル横なので、調味料を入れたりと重宝します。 |
和室(仏間)
リフォーム前![]() |
リフォーム後![]() 仏壇が鬼門にかかっていた為、仏間(和室)は残しつつ、仏壇の向きと位置を変更しました。 ![]() 変形の床の間。廊下にあった窓を再利用しました。 |
トイレ
リフォーム後![]() 広々としたトイレ空間。 |
サンルーム兼キッチン
リフォーム後![]() ガスの火力をつかった料理ができます。 |
解決方法・工夫点
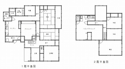
- 既存の間取りは直下率が悪かった為、耐震を考慮しプランしました。1階を一部減築し、無駄に多かった廊下をなくすことで南側にLDK、西側に父の居室を配置など間取りをガラッと変えました。
- 仏壇が鬼門にかかっていたため、仏間(和室)は残しつつ、仏壇の向きと位置を変更しました。
その際に廊下の窓を利用した変形の床の間を設けました。 - 和室の欄間をLDKの畳コーナーに移設し、LDKと仏間が自然につながるように和洋折衷のインテリアとしました。
- LDK横に「男のキッチン」兼サンルームと勝手口を設けました。ゴミの置き場所も確保でき、お子様を見ながらの家事がスムーズにできるようになりました。
お施主様の感想
生活スタイルの変化
間取りがガラッと変わり、生活が大きく変わりました。親戚も大きな変わりように「リフォームでここまでできるのか」と
びっくりしていました。
リモデルしてスマイルになったこと
南側にLDKをもってくることで本当に明るく快適な空間になりました。
子供を見ながら食事の支度ができるようになり、とても満足しています。
リビング横のサンルームと「男のキッチン」兼勝手口が特に使いやすく気に入っています。





























