- HOME
- 施工事例一覧
- 二世帯同居型リフォーム事例一覧
- 金沢市 H様邸 二世帯同居型リフォーム事例
金沢市 H様邸 二世帯同居型リフォーム事例
代々継承したくなる家「現代風古民家」



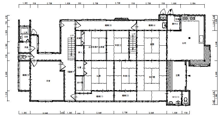
リフォーム前 |
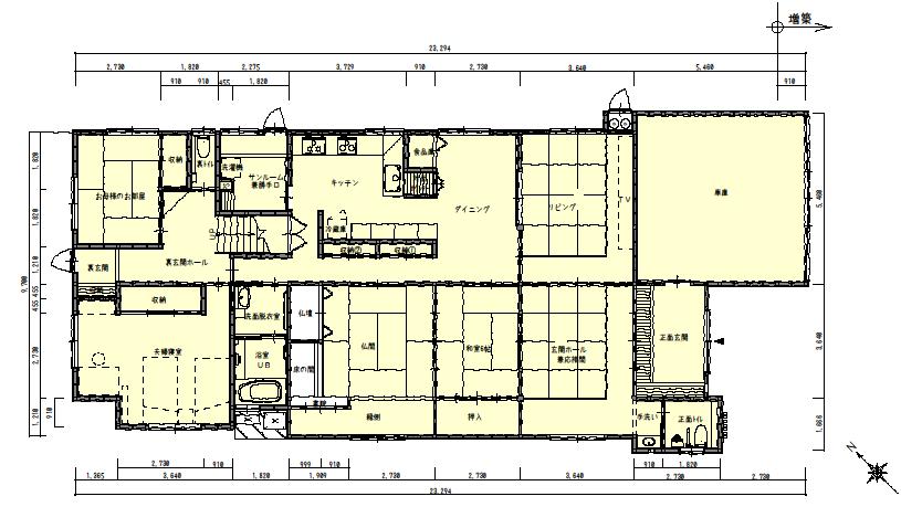
リフォーム後 |
リフォーム前のお施主様の悩み・ご要望
- 代々受け継ぐ大切な「家」を活かしながら後世にも継承していきたい。
- キッチンと洗濯機が置いてある洗面脱衣室までが遠くて不便・・・
- 昔ながらの田の字の和室。寒いし、収納場所も少ない・・・
- 裏の畑までの動線を確保したい。
- 車は外に停めてあるので特に冬は雪で大変。なんとかならないかなぁ・・・

外観
リフォーム前![]() |
リフォーム後![]() 市の基準を大きく上回る耐震補強を施した。 |
玄関ホール兼応接間
リフォーム前![]() |
リフォーム後![]() 明るく、開放感あふれる空間とした。外と中をつなぐおもてなしの間は天井を高くとり、梁を見せる設計とした。 ![]() |
キッチン
リフォーム後使い勝手も良くなったキッチンでは母娘が仲良く一緒にご飯の支度をするようになりました。 ![]() |
仏間
リフォーム前![]() |
リフォーム後![]() 本家であるため、親戚が集う際には2つの和室をつなげて利用できるように昔の趣を残したままとした。 |
トイレ
リフォーム前![]() |
リフォーム後![]() お手洗いの腰壁に羽目板を再利用。また九谷焼の洗面ボウルを使用し、ここでも地産地消の考えを採用。 |
解決方法・工夫点
- 残せるものは残し、また耐震強度を上げることによって次の代へ安心して継承できる家となった。
- 水まわりをまとめ、家事動線が短くなるように配置した。
- 寒さは断熱材やペアサッシによって解消。収納は必要な場所に必要な分設けた。
- 裏の畑にすぐ出られる位置に裏玄関を配置した。
- インナーガレージを設けたのでもう天候を気にしません。
お施主様の感想
生活スタイルの変化
- ご近所づきあいも密なので、玄関先で立ち話なんて場合には玄関から1つ入った
「おもてなしの間」へご案内。家族もご近所さんもみんなスマイルです - 水まわりがまとまったので家事がとても楽になりました
- 耐震面や寒さに対する不安が安心に変わりました
- 畑までの移動がとても楽になり、これまで以上に畑仕事が楽しくなりました
- ご高齢のお母様。手摺りの設置や段差解消、トイレまでが近い「優しい家」ににっこりスマイルです
- 強くなった安心の家を継承していってくれることが楽しみです


























