- HOME
- 施工事例一覧
- 二世帯同居型リフォーム事例一覧
- 加賀市 M様邸 二世帯同居型リフォーム事例
加賀市 M様邸 二世帯同居型リフォーム事例
「酒房 男蔵」



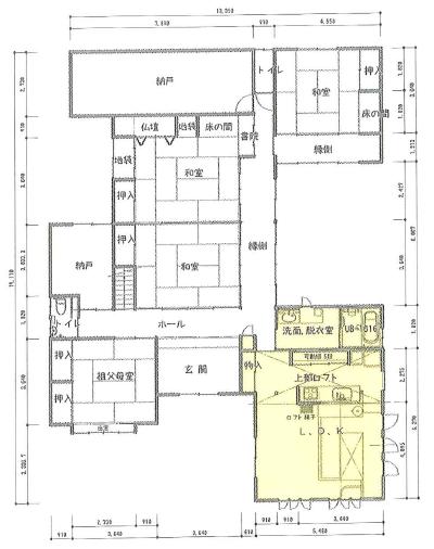
リフォーム前 |
リフォーム後 |
リフォーム前のお施主様の悩み・ご要望
- 祖父母の足腰が痛むので、バリアフリーで安全に暮らしたい
- 台所から脱衣場に入るのが不便
- ご主人の書斎がほしい
- お洒落なリビングにしたい

リビングダイニング
リフォーム前![]() |
リフォーム後![]() 小上がりのタタミの下部はたっぷりの収納スペースになっています。 ![]() タモの無垢一枚板を使ったダイニングテーブルが居酒屋風の雰囲気を醸し出しています。 |
キッチン
リフォーム前![]() |
リフォーム後![]() 黄色のシンクが可愛いシステムキッチン。対面式なのでリビングの様子がよくわかります。 |
洗面脱衣室
リフォーム前![]() |
リフォーム後![]() 広めの洗面スペースには洗濯物をたたむ為のカウンターと収納棚を設置し、機能的なスペースになりました。 |
浴室
リフォーム前![]() |
リフォーム後![]() ユニットバスにして、毎日のお手入れが楽になりました。 |
トイレ
リフォーム前![]() |
リフォーム後![]() オート開閉の便座や手摺りを取付して、お父様にも使いやすいトイレになりました。 |
ロフト
リフォーム後![]() キッチン上の広い天井裏をロフトにしました。ご主人の隠れ家として音楽を楽しんだりできます。 ![]() ロフトから見下ろすリビングダイニングも素敵です。 |
解決方法・工夫点
- 段差をなくし、扉は軽い引き戸の上吊戸にして、必要な個所には手摺りを設置しました。
- 間取りを変えて、廊下から直接洗面脱衣室に入れるようになりました。
- キッチン上部にロフトを設けて、ご主人の「男の隠れ家」を実現しました。
- 居酒屋をイメージしたLDKをご提案しました。
お施主様の感想
生活スタイルの変化
- リビングに集まって家庭団らんの時間が増えました。
- リビングから山の景色が眺められるようになって、とても癒される空間になりました。
- 毎日が居酒屋で飲んでいるような感じで、大変喜んでいます。
- ご主人が隠れ家にこもることも多々あります。
リモデルしてスマイルになったこと
ご近所の方がよく遊びに来られるようになり、楽しい集いの場になっています。






























