- HOME
- 施工事例一覧
- 二世帯同居型リフォーム事例一覧
- 加賀市 I様邸 おうちまるごとリフォーム事例
加賀市 I様邸 おうちまるごとリフォーム事例
壊すしかないと言われた家で叶った夢



リフォーム前![]() |
リフォーム後 |
リフォーム前のお施主様の悩み・ご要望
- 築100年の家、リフォームで安心な家にしたい
- 断熱がなく、夏暑くて冬寒い
- 雨音がうるさい
- 寝食分離し、家族それぞれの個室がほしい
- 将来的なことを考え、バリアフリーにしたい

外観
リフォーム前![]() |
リフォーム後![]() 玄関位置を変え、カーポートからの出入りもスムーズに...。 |
玄関
リフォーム前![]() |
リフォーム後![]() スッキリとした玄関スペース。 |
ダイニング
リフォーム後![]() ゆったりとしたダイニング空間。淡いピンク調の空間を |
キッチン
リフォーム後![]() 対面キッチンでコミュニケーションもとれるようになりました。 |
洗面脱衣室
リフォーム後![]() 収納力のある洗面化粧台で小物もスッキリと片付けることができます。 |
トイレ
リフォーム前![]() |
リフォーム後![]() 白を基調としたシンプルなトイレ空間。手摺りも設け安全も確保しました。 |
個室
リフォーム前![]() |
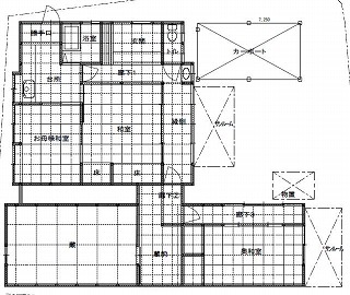
リフォーム後![]() 増築なしでご家族それぞれの個室を確保しました。 ![]() |
解決方法・工夫点
- 診断結果をもとに断熱施工、基礎補強、構造補強を行い安心のお住まいとなりました。
- 断熱施工をし、快適な室温が保たれるようになりました。
- 以前はトタン1枚の箇所もあり、雨音や外部の音が気になっていましたが、断熱施工、そして気密性の高い窓を使用し、断熱性、気密性を高めることによって音の侵入をシャットアウトしました。
- 間取りをガラッと変え、空間を無駄なく有効活用し、一人一人の個室を確保しました。
- 「バリアフリー」段差解消だけでなく、断熱施工による温度のバリアフリーを実現。また施主様とお母様のお部屋を隣り同士にするなど距離感を大切にしたご家族が安心して暮らしていただけるお住まいとなりました。
お施主様の感想

生活スタイルの変化
外の音が気にならなくなりました。家中にあった段差がなくなり、安心です。
リモデルしてスマイルになったこと
娘2人が自分の部屋ができたととても喜んでいます。お友達も遊びにくるようになりました。





























