- HOME
- 施工事例一覧
- 二世帯同居型リフォーム事例一覧
- 金沢市 H様邸 二世帯同居型リフォーム事例
金沢市 H様邸 二世帯同居型リフォーム事例
休日はみんなが集まるLDK



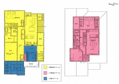
リフォーム前![]() |
リフォーム後![]() |
リフォーム前のお施主様の悩み・ご要望
- お互いが気兼ねなく生活ができるよう玄関以外は別にしたい
- 遅く帰ってきても気にならないよう階段の位置を変えたい
- 念願のシアタールームをつくりたい
- 居間が暗い

リビング
リフォーム前![]() ![]() ![]() |
リフォーム後![]() 1Fリビング ![]() 2Fリビング ![]() リビング空間はスクリーンをおろせばホームシアターに変身。ご両親に音漏れが気にならないよう防音にも配慮しました。 |
キッチン
リフォーム前![]() |
リフォーム後![]() 1Fキッチン |
ダイニングキッチン
リフォーム後![]() 2Fダイニングキッチンは白とこげ茶の配色がモダンな印象 |
トイレ
リフォーム前![]() |
リフォーム後![]() 1Fトイレ ![]() トイレ前洗面コーナーには珠洲焼手洗いボウルを使用しました。 ![]() 既存の欄間を再利用しました。 |
縁側
リフォーム後![]() 縁側奥がウッドデッキとなっています。 ![]() オリジナル和紙を挟み込んだ建具。大胆な柄がパッと目をひく空間のアクセントとなっています。 |
解決方法・工夫点
- 玄関のみ共有であとの生活空間は全て別の完全分離型の二世帯住宅としました。
- 階段を玄関横に位置を変えました。
- 2Fの若世帯用LDKにはプロジェクターとスクリーンを取り付け、ホームシアターとしても楽しめます。
- 使われていなかった南側の和室部分をリビングにしました。
お施主様の感想
生活スタイルの変化
週末には近くに住む弟夫婦も集まり、バーベキューを楽しんだり、とても賑やかになりました。
リモデルしてスマイルになったこと
念願のホームシアターで休日は映画を楽しんでいます。


































